













Book your tour. Save an average of $18,473. We'll handle the rest.
- Confirmed tours
- Get matched & compare top deals
- Expert help, no pressure
- No added fees
Estimated value based on Jome data, T&C apply











- 4 bd
- 3.5 ba
- 3,101 sqft
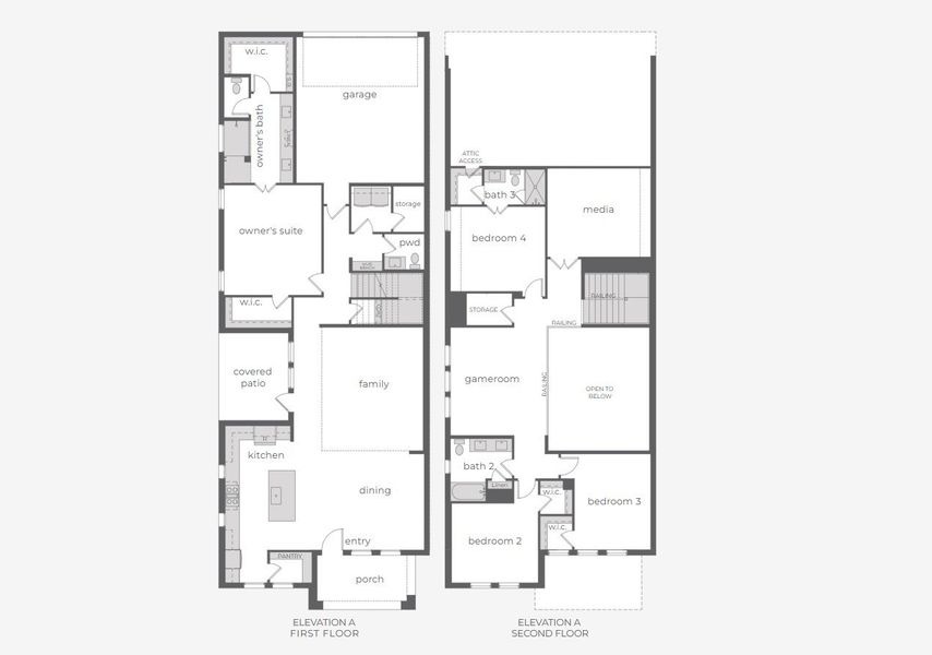
Gabriel plan in Hazelwood 40' Series by Normandy Homes
Visit the community to experience this floor plan
Why tour with Jome?
- No pressure toursTour at your own pace with no sales pressure
- Expert guidanceGet insights from our home buying experts
- Exclusive accessSee homes and deals not available elsewhere
Jome is featured in
Plan description
May also be listed on the Normandy Homes website
Information last verified by Jome: Tuesday at 8:33 AM (December 30, 2025)
Plan details
- Name:
- Gabriel
- Property status:
- Floor plan
- Lot width (feet):
- 40
- Size:
- 3,101 sqft
- Stories:
- 2
- Beds:
- 4
- Baths:
- 3
- Half baths:
- 1
- Garage spaces:
- 2
- HERS index:
- 59
Plan features & finishes
- Garage/Parking:
- GarageAttached Garage
- Interior Features:
- Walk-In ClosetStorage
- Kitchen:
- Kitchen Island
- Laundry facilities:
- Utility/Laundry Room
- Property amenities:
- Porch
- Rooms:
- KitchenPowder RoomGame RoomMedia RoomDining RoomFamily RoomOpen Concept FloorplanPrimary Bedroom Upstairs

Get a consultation with our New Homes Expert
- See how your home builds wealth
- Plan your home-buying roadmap
- Discover hidden gems
See the full plan layout
Download the floor plan PDF with room dimensions and home design details.

Instant download, no cost

Community details
Hazelwood 40' Series
by Normandy Homes, Frisco, TX
- 4 homes
- 5 plans
- 3,027 - 3,193 sqft
View Hazelwood 40' Series details
Want to know more about what's around here?
The Gabriel floor plan is part of Hazelwood 40' Series, a new home community by Normandy Homes, located in Frisco, TX. Visit the Hazelwood 40' Series community page for full neighborhood insights, including nearby schools, shopping, walk & bike-scores, commuting, air quality & natural hazards.

Homes built from this plan
Available homes in Hazelwood 40' Series
- Home at address 15659 Gladeside Ave, Frisco, TX 75033

Laurent
$694,490
- 4 bd
- 3.5 ba
- 3,131 sqft
15659 Gladeside Ave, Frisco, TX 75033
- Home at address 15659 Gladeside Ave, Frisco, TX 75034

Laurent
$699,490
- 4 bd
- 3.5 ba
- 3,131 sqft
15659 Gladeside Ave, Frisco, TX 75034
- Home at address 15645 Gladeside Ave, Frisco, TX 75034

Marcel II
$709,350
- 4 bd
- 3.5 ba
- 3,169 sqft
15645 Gladeside Ave, Frisco, TX 75034
- Home at address 15630 Mandrake Trl, Frisco, TX 75033

Valente
$715,190
- 4 bd
- 3.5 ba
- 3,193 sqft
15630 Mandrake Trl, Frisco, TX 75033
More floor plans in Hazelwood 40' Series

Considering this plan?
Our expert will guide your tour, in-person or virtual
Need more information?
Text or call (888) 486-2818
Financials
Estimated monthly payment
Let us help you find your dream home
How many bedrooms are you looking for?
Similar homes nearby
Recently added communities in this area
Nearby communities in Frisco
New homes in nearby cities
More New Homes in Frisco, TX
- Jome
- New homes search
- Texas
- Dallas-Fort Worth Area
- Denton County
- Frisco
- Hazelwood 40' Series
- 15877 Mandrake Trl, Frisco, TX 75034




























