




Book your tour. Save an average of $18,473. We'll handle the rest.
We collect exclusive builder offers, book your tours, and support you from start to housewarming.
- Confirmed tours
- Get matched & compare top deals
- Expert help, no pressure
- No added fees
Estimated value based on Jome data, T&C apply
- 5 bd
- 4.5 ba
- 4,134 sqft
4134A plan in Johnson Ranch by Perry Homes
Visit the community to experience this floor plan
Why tour with Jome?
- No pressure toursTour at your own pace with no sales pressure
- Expert guidanceGet insights from our home buying experts
- Exclusive accessSee homes and deals not available elsewhere
Jome is featured in
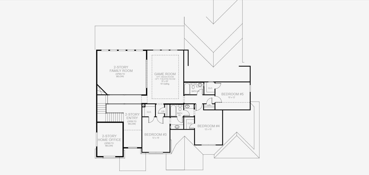
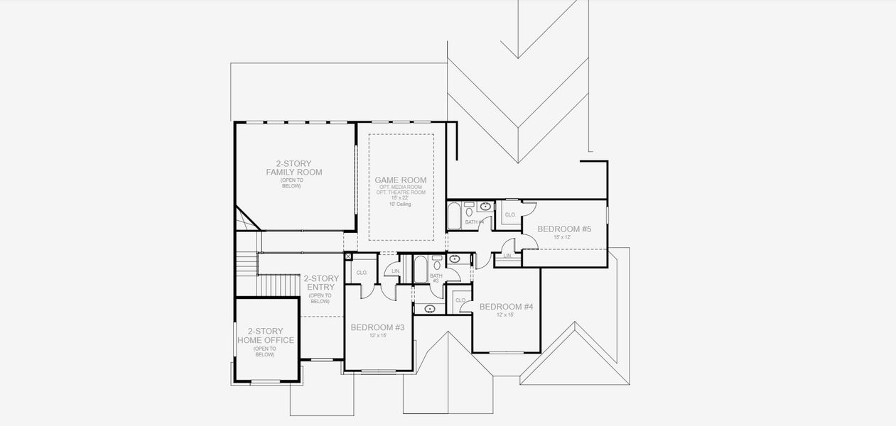
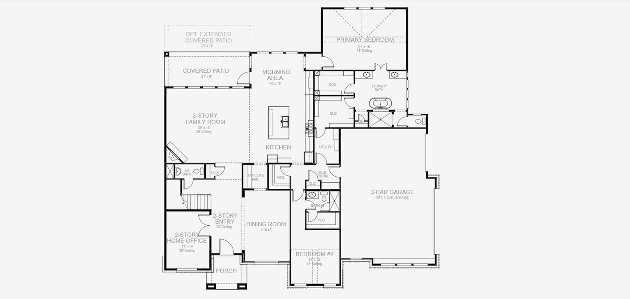
Plan description
May also be listed on the Perry Homes website
Information last verified by Jome: Yesterday at 6:33 AM (March 7, 2026)
Plan details
- Name:
- 4134A
- Property type:
- Floor plan
- Community:
- Johnson Ranch
- Builder:
- Perry Homes
- Collection:
- Johnson Ranch Half Acre
- Size:
- 4,134 sqft
- Stories:
- 2
- Beds:
- 5
- Baths:
- 4
- Half baths:
- 1
- Garage spaces:
- 3
Plan features & finishes
- Garage/Parking:
- GarageAttached Garage
- Interior Features:
- Walk-In ClosetPantry
- Kitchen:
- Kitchen Island
- Laundry facilities:
- Utility/Laundry Room
- Property amenities:
- Butler's PantryTwo-Story Entry FoyerPatioPorch
- Rooms:
- Primary Bedroom On MainKitchenTwo-Story Great RoomGame RoomOffice/StudyDining RoomBreakfast AreaOpen Concept FloorplanPrimary Bedroom Downstairs
- Upgrade Options:
- Freestanding TubTheatre RoomMedia RoomGarage BaySliding DoorsExtended Patio

Get a consultation with our New Homes Expert
- See how your home builds wealth
- Plan your home-buying roadmap
- Discover hidden gems
See the full plan layout
Download the floor plan PDF with room dimensions and home design details.

Instant download, no cost

Community details
Johnson Ranch at Johnson Ranch
by Perry Homes, Bulverde, TX
- 12 homes
- 56 plans
- 2,493 - 6,321 sqft
View Johnson Ranch details
Want to know more about what's around here?
The 4134A floor plan is part of Johnson Ranch, a new home community by Perry Homes, located in Bulverde, TX. Visit the Johnson Ranch community page for full neighborhood insights, including nearby schools, shopping, walk & bike-scores, commuting, air quality & natural hazards.

Available homes in Johnson Ranch
- Home at address 31241 Fallow Wy, Bulverde, TX 78163

3553W
Johnson Ranch 55'
$708,900
- 5 bd
- 4.5 ba
- 3,553 sqft
31241 Fallow Wy, Bulverde, TX 78163
- Home at address 31179 Osage Run, Bulverde, TX 78163

4098W
Johnson Ranch 70'
$973,900
- 5 bd
- 4.5 ba
- 4,098 sqft
31179 Osage Run, Bulverde, TX 78163
- Home at address 31120 Clover Pass, Bulverde, TX 78163

4891W
Johnson Ranch 70'
$974,900
- 5 bd
- 4.5 ba
- 4,891 sqft
31120 Clover Pass, Bulverde, TX 78163
- Home at address 3877 Wrangler Lp, Bulverde, TX 78163

4354A
Johnson Ranch Half Acre
$1,129,900
- 5 bd
- 4.5 ba
- 4,354 sqft
3877 Wrangler Lp, Bulverde, TX 78163
More floor plans in Johnson Ranch

Considering this plan?
Our expert will guide your tour, in-person or virtual
Need more information?
Text or call (888) 488-9243
Financials
Estimated monthly payment
Let us help you find your dream home
How many bedrooms are you looking for?
Similar homes nearby
Recently added communities in this area
Nearby communities in Bulverde
New homes in nearby cities
More New Homes in Bulverde, TX
- Jome
- New homes search
- Texas
- Greater San Antonio
- Comal County
- Bulverde
- Johnson Ranch
- Johnson Ranch Half Acre
- 31184 Clover Pass, Bulverde, TX 78163




























