









Book your tour. Save an average of $18,473. We'll handle the rest.
We collect exclusive builder offers, book your tours, and support you from start to housewarming.
- Confirmed tours
- Get matched & compare top deals
- Expert help, no pressure
- No added fees
Estimated value based on Jome data, T&C apply












- 5 bd
- 4.5 ba
- 4,354 sqft
4354A plan in Johnson Ranch by Perry Homes
Visit the community to experience this floor plan
Why tour with Jome?
- No pressure toursTour at your own pace with no sales pressure
- Expert guidanceGet insights from our home buying experts
- Exclusive accessSee homes and deals not available elsewhere
Jome is featured in
Plan description
May also be listed on the Perry Homes website
Information last verified by Jome: Today at 6:11 AM (April 15, 2026)
Plan details
- Name:
- 4354A
- Property type:
- Floor plan
- Community:
- Johnson Ranch
- Builder:
- Perry Homes
- Collection:
- Johnson Ranch Half Acre
- Size:
- 4,354 sqft
- Stories:
- 2
- Beds:
- 5
- Baths:
- 4
- Half baths:
- 1
- Garage spaces:
- 3
Plan features & finishes
- Garage/Parking:
- GarageAttached Garage
- Interior Features:
- Walk-In ClosetPantry
- Kitchen:
- Kitchen Island
- Laundry facilities:
- Utility/Laundry Room
- Property amenities:
- Butler's PantryTwo-Story Entry FoyerPatioFireplace
- Rooms:
- Primary Bedroom On MainKitchenTwo-Story Great RoomGame RoomMedia RoomMudroomBreakfast AreaOpen Concept FloorplanPrimary Bedroom Downstairs
- Upgrade Options:
- Theatre RoomAlternate KitchenSliding DoorsExtended Patio

Get a consultation with our New Homes Expert
- See how your home builds wealth
- Plan your home-buying roadmap
- Discover hidden gems
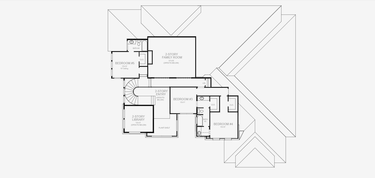
See the full plan layout
Download the floor plan PDF with room dimensions and home design details.

Instant download, no cost

Community details
Johnson Ranch at Johnson Ranch
by Perry Homes, Bulverde, TX
- 12 homes
- 56 plans
- 2,493 - 6,321 sqft
View Johnson Ranch details
Want to know more about what's around here?
The 4354A floor plan is part of Johnson Ranch, a new home community by Perry Homes, located in Bulverde, TX. Visit the Johnson Ranch community page for full neighborhood insights, including nearby schools, shopping, walk & bike-scores, commuting, air quality & natural hazards.

Homes built from this plan
Available homes in Johnson Ranch
- Home at address 31120 Clover Pass, Bulverde, TX 78163

4891W
SavingsJohnson Ranch 70'
$974,900
- 5 bd
- 4.5 ba
- 4,891 sqft
31120 Clover Pass, Bulverde, TX 78163
More floor plans in Johnson Ranch

Considering this plan?
Our expert will guide your tour, in-person or virtual
Need more information?
Text or call (888) 545-5198
Financials
Estimated monthly payment
Let us help you find your dream home
How many bedrooms are you looking for?
Similar homes nearby
Recently added communities in this area
Nearby communities in Bulverde
New homes in nearby cities
More New Homes in Bulverde, TX
- Jome
- New homes search
- Texas
- Greater San Antonio
- Comal County
- Bulverde
- Johnson Ranch
- Johnson Ranch Half Acre
- 31184 Clover Pass, Bulverde, TX 78163


































