









Book your tour. Save an average of $18,473. We'll handle the rest.
We collect exclusive builder offers, book your tours, and support you from start to housewarming.
- Confirmed tours
- Get matched & compare top deals
- Expert help, no pressure
- No added fees
Estimated value based on Jome data, T&C apply






























- 4 bd
- 3.5 ba
- 3,664 sqft
Munich ESP plan in Monterra by K. Hovnanian® Homes
Visit the community to experience this floor plan
Why tour with Jome?
- No pressure toursTour at your own pace with no sales pressure
- Expert guidanceGet insights from our home buying experts
- Exclusive accessSee homes and deals not available elsewhere
Jome is featured in
Plan description
May also be listed on the K. Hovnanian® Homes website
Information last verified by Jome: Today at 5:49 PM (April 14, 2026)
Plan details
- Name:
- Munich ESP
- Property type:
- Floor plan
- Community:
- Monterra
- Builder:
- K. Hovnanian® Homes
- Size:
- 3,664 sqft
- Stories:
- 2
- Beds:
- 4
- Baths:
- 3.5
- Garage spaces:
- 2
Plan features & finishes
- Garage/Parking:
- GarageAttached Garage
- Interior Features:
- Walk-In ClosetFoyerPantryLoft
- Kitchen:
- Gas CooktopKitchen Island
- Laundry facilities:
- Utility/Laundry Room
- Property amenities:
- PatioPorch
- Rooms:
- Primary Bedroom On MainKitchenOffice/StudyDining RoomFamily RoomLiving RoomOpen Concept FloorplanPrimary Bedroom Downstairs
- Upgrade Options:
- Freestanding TubOptional Multi-Gen SuiteMulti-Slide DoorsFireplace

Get a consultation with our New Homes Expert
- See how your home builds wealth
- Plan your home-buying roadmap
- Discover hidden gems
Utility information
- Utilities:
- Natural Gas Available
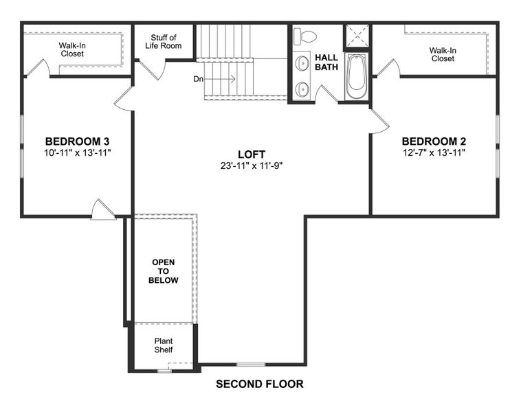
See the full plan layout
Download the floor plan PDF with room dimensions and home design details.

Instant download, no cost

Community details
Monterra at Monterra
by K. Hovnanian® Homes, Rockwall, TX
- 9 homes
- 6 plans
- 2,499 - 3,911 sqft
View Monterra details
Want to know more about what's around here?
The Munich ESP floor plan is part of Monterra, a new home community by K. Hovnanian® Homes, located in Fate, TX. Visit the Monterra community page for full neighborhood insights, including nearby schools, shopping, walk & bike-scores, commuting, air quality & natural hazards.

Available homes in Monterra
- Home at address 1340 Cartona Rd, Fate, TX 75087

Belfast
$489,000
- 4 bd
- 3 ba
- 2,499 sqft
1340 Cartona Rd, Fate, TX 75087
- Home at address 1140 Monterra Way, Fate, TX 75087

Frankfurt
$530,000
- 4 bd
- 2.5 ba
- 2,825 sqft
1140 Monterra Way, Fate, TX 75087
- Home at address 1215 Cartona Rd, Fate, TX 75087

Geneva
$593,000
- 4 bd
- 3.5 ba
- 2,843 sqft
1215 Cartona Rd, Fate, TX 75087
- Home at address 1211 Cartona Rd, Fate, TX 75087

Geneva
$598,000
- 4 bd
- 3.5 ba
- 2,852 sqft
1211 Cartona Rd, Fate, TX 75087
- Home at address 1132 Vletti Dr, Fate, TX 75087

Glasgow
$607,350
- 4 bd
- 3.5 ba
- 2,857 sqft
1132 Vletti Dr, Fate, TX 75087
- Home at address 1410 Potenza Rd, Fate, TX 75087

Geneva
$612,000
- 4 bd
- 3.5 ba
- 2,858 sqft
1410 Potenza Rd, Fate, TX 75087
More floor plans in Monterra

Considering this plan?
Our expert will guide your tour, in-person or virtual
Need more information?
Text or call (888) 545-5198
Financials
Estimated monthly payment
Let us help you find your dream home
How many bedrooms are you looking for?
Similar homes nearby
Recently added communities in this area
Nearby communities in Fate
New homes in nearby cities
More New Homes in Fate, TX
- Jome
- New homes search
- Texas
- Dallas-Fort Worth Area
- Rockwall County
- Fate
- Monterra
- 1030 Monterra Wy, Fate, TX 75087






























