













Book your tour. Save an average of $18,473. We'll handle the rest.
- Confirmed tours
- Get matched & compare top deals
- Expert help, no pressure
- No added fees
Estimated value based on Jome data, T&C apply










- 4 bd
- 3 ba
- 3,118 sqft
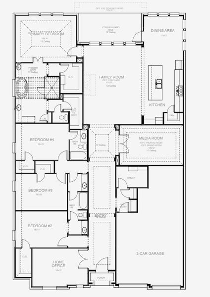
3118W plan in Two Step Farm 60' by Perry Homes
Visit the community to experience this floor plan
Why tour with Jome?
- No pressure toursTour at your own pace with no sales pressure
- Expert guidanceGet insights from our home buying experts
- Exclusive accessSee homes and deals not available elsewhere
Jome is featured in
Plan description
May also be listed on the Perry Homes website
Information last verified by Jome: Today at 6:28 AM (December 7, 2025)
Plan highlights
Plan details
- Name:
- 3118W
- Property status:
- Floor plan
- Lot width (feet):
- 60
- Size:
- 3,118 sqft
- Stories:
- 1
- Beds:
- 4
- Baths:
- 3
- Garage spaces:
- 3
Plan features & finishes
- Garage/Parking:
- GarageAttached Garage
- Interior Features:
- Walk-In ClosetPantry
- Laundry facilities:
- Utility/Laundry Room
- Property amenities:
- Covered PatioPorch
- Rooms:
- Primary Bedroom On MainKitchenMedia RoomOffice/StudyMudroomDining RoomFamily RoomOpen Concept FloorplanPrimary Bedroom Downstairs
- Upgrade Options:
- Freestanding TubSliding Glass DoorsTheatre RoomFireplaceExtended Patio
See the full plan layout
Download the floor plan PDF with room dimensions and home design details.

Instant download, no cost

Community details
Two Step Farm 60'
by Perry Homes, Montgomery, TX
- 3 homes
- 21 plans
- 2,769 - 4,016 sqft
View Two Step Farm 60' details
Want to know more about what's around here?
The 3118W floor plan is part of Two Step Farm 60', a new home community by Perry Homes, located in Montgomery, TX. Visit the Two Step Farm 60' community page for full neighborhood insights, including nearby schools, shopping, walk & bike-scores, commuting, air quality & natural hazards.

Available homes in Two Step Farm 60'
More floor plans in Two Step Farm 60'

Considering this plan?
Our expert will guide your tour, in-person or virtual
Need more information?
Text or call (888) 486-2818
Financials
Estimated monthly payment
Similar homes nearby
Recently added communities in this area
Nearby communities in Montgomery
New homes in nearby cities
More New Homes in Montgomery, TX
- Home
- New homes
- Texas
- Greater Houston Area
- Montgomery County
- Montgomery
- Two Step Farm 60'
- 8207 Folks St, Montgomery, TX 77316





































