









Book your tour. Save an average of $18,473. We'll handle the rest.
- Confirmed tours
- Get matched & compare top deals
- Expert help, no pressure
- No added fees
Estimated value based on Jome data, T&C apply
- 4 bd
- 3.5 ba
- 2,407 sqft
2407E plan in Santa Rita Ranch 40' by Perry Homes
Visit the community to experience this floor plan
Why tour with Jome?
- No pressure toursTour at your own pace with no sales pressure
- Expert guidanceGet insights from our home buying experts
- Exclusive accessSee homes and deals not available elsewhere
Jome is featured in
Plan description
May also be listed on the Perry Homes website
Information last verified by Jome: Today at 6:21 AM (December 7, 2025)
Plan highlights
Plan details
- Name:
- 2407E
- Property status:
- Floor plan
- Lot width (feet):
- 40
- Size:
- 2,407 sqft
- Stories:
- 2
- Beds:
- 4
- Baths:
- 3
- Half baths:
- 1
- Garage spaces:
- 2
Plan features & finishes
- Garage/Parking:
- GarageAttached Garage
- Interior Features:
- Walk-In ClosetPantry
- Kitchen:
- Kitchen Island
- Laundry facilities:
- Utility/Laundry Room
- Property amenities:
- PatioPorch
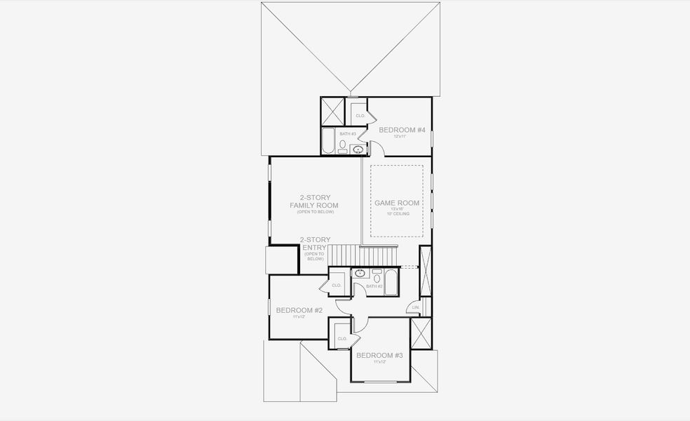
- Rooms:
- Primary Bedroom On MainKitchenGame RoomOffice/StudyDining RoomFamily RoomOpen Concept FloorplanPrimary Bedroom Downstairs
- Upgrade Options:
- Alternate Primary BathSliding DoorsExtra BedroomFireplace
See the full plan layout
Download the floor plan PDF with room dimensions and home design details.

Instant download, no cost

Community details
Santa Rita Ranch 40' at Santa Rita Ranch
by Perry Homes, Liberty Hill, TX
- 6 homes
- 17 plans
- 1,500 - 2,585 sqft
View Santa Rita Ranch 40' details
Want to know more about what's around here?
The 2407E floor plan is part of Santa Rita Ranch 40', a new home community by Perry Homes, located in Liberty Hill, TX. Visit the Santa Rita Ranch 40' community page for full neighborhood insights, including nearby schools, shopping, walk & bike-scores, commuting, air quality & natural hazards.

Homes built from this plan
Available homes in Santa Rita Ranch 40'
More floor plans in Santa Rita Ranch 40'

Considering this plan?
Our expert will guide your tour, in-person or virtual
Need more information?
Text or call (888) 486-2818
Financials
Estimated monthly payment
Similar homes nearby
Recently added communities in this area
Nearby communities in Liberty Hill
New homes in nearby cities
More New Homes in Liberty Hill, TX
- Home
- New homes
- Texas
- Greater Austin Area
- Williamson County
- Liberty Hill
- Santa Rita Ranch 40'
- 108 Villoria Cv, Liberty Hill, TX 78642






































