














Book your tour. Save an average of $18,473. We'll handle the rest.
- Confirmed tours
- Get matched & compare top deals
- Expert help, no pressure
- No added fees
Estimated value based on Jome data, T&C apply


- 4 bd
- 3.5 ba
- 2,599 sqft
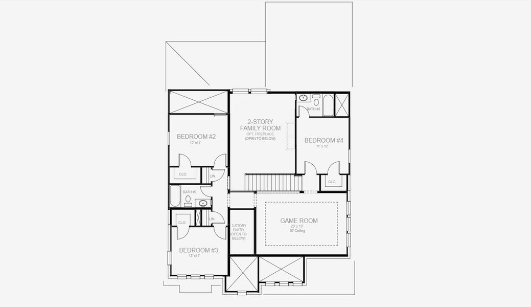
2599W plan in Devonshire by Perry Homes
Visit the community to experience this floor plan
Why tour with Jome?
- No pressure toursTour at your own pace with no sales pressure
- Expert guidanceGet insights from our home buying experts
- Exclusive accessSee homes and deals not available elsewhere
Jome is featured in
Plan description
May also be listed on the Perry Homes website
Information last verified by Jome: Yesterday at 6:17 AM (February 4, 2026)
Plan details
- Name:
- 2599W
- Property status:
- Floor plan
- Collection:
- Devonshire 55'
- Lot width (feet):
- 55
- Size:
- 2,599 sqft
- Stories:
- 2
- Beds:
- 4
- Baths:
- 3
- Half baths:
- 1
- Garage spaces:
- 2
Plan features & finishes
- Garage/Parking:
- GarageAttached Garage
- Interior Features:
- Ceiling-HighWalk-In ClosetPantryFrench Doors
- Kitchen:
- Kitchen Island
- Laundry facilities:
- Utility/Laundry Room
- Property amenities:
- Two-Story Entry FoyerPatioPorch
- Rooms:
- Primary Bedroom On MainKitchenTwo-Story Great RoomGame RoomOffice/StudyMudroomDining RoomOpen Concept FloorplanPrimary Bedroom Downstairs
- Upgrade Options:
- Extra BathroomSliding DoorsExtra BedroomFireplace

Get a consultation with our New Homes Expert
- See how your home builds wealth
- Plan your home-buying roadmap
- Discover hidden gems
See the full plan layout
Download the floor plan PDF with room dimensions and home design details.

Instant download, no cost

Community details
Devonshire at Devonshire
by Perry Homes, Forney, TX
- 22 homes
- 76 plans
- 1,722 - 4,016 sqft
View Devonshire details
Want to know more about what's around here?
The 2599W floor plan is part of Devonshire, a new home community by Perry Homes, located in Forney, TX. Visit the Devonshire community page for full neighborhood insights, including nearby schools, shopping, walk & bike-scores, commuting, air quality & natural hazards.

Homes built from this plan
Available homes in Devonshire
- Home at address 2931 Soaring Hills Dr, Forney, TX 75126

1942W
Devonshire - Reserve 45'
$399,900
- 4 bd
- 3 ba
- 1,942 sqft
2931 Soaring Hills Dr, Forney, TX 75126
- Home at address 2021 Brewers Ln, Forney, TX 75126

1992W
Devonshire - Reserve 45'
$424,900
- 4 bd
- 2 ba
- 1,992 sqft
2021 Brewers Ln, Forney, TX 75126
- Home at address 2415 Lyrebird Ln, Forney, TX 75126

2188W
Devonshire - Reserve 45'
$424,900
- 4 bd
- 3 ba
- 2,188 sqft
2415 Lyrebird Ln, Forney, TX 75126
- Home at address 2929 Soaring Hills Dr, Forney, TX 75126

2188W
Devonshire - Reserve 45'
$424,900
- 4 bd
- 3 ba
- 2,188 sqft
2929 Soaring Hills Dr, Forney, TX 75126
- Home at address 1122 Barnmeadow Ln, Forney, TX 75126

Design 2504W
Devonshire - Reserve 50'
$439,999
- 4 bd
- 3 ba
- 2,504 sqft
1122 Barnmeadow Ln, Forney, TX 75126
- Home at address 2719 Kirkhill Ln, Forney, TX 75126

2519W
Devonshire 55'
$449,900
- 4 bd
- 3 ba
- 2,519 sqft
2719 Kirkhill Ln, Forney, TX 75126
More floor plans in Devonshire

Considering this plan?
Our expert will guide your tour, in-person or virtual
Need more information?
Text or call (888) 486-2818
Financials
Estimated monthly payment
Let us help you find your dream home
How many bedrooms are you looking for?
Similar homes nearby
Recently added communities in this area
Nearby communities in Forney
New homes in nearby cities
More New Homes in Forney, TX
- Jome
- New homes search
- Texas
- Dallas-Fort Worth Area
- Kaufman County
- Forney
- Devonshire
- Devonshire 55'
- 1018 Hoxton Ln, Forney, TX 75126































