






Book your tour. Save an average of $18,473. We'll handle the rest.
We collect exclusive builder offers, book your tours, and support you from start to housewarming.
- Confirmed tours
- Get matched & compare top deals
- Expert help, no pressure
- No added fees
Estimated value based on Jome data, T&C apply



- 4 bd
- 4.5 ba
- 4,076 sqft
6032 plan in StarView – 74′ by Tradition Homes
Visit the community to experience this floor plan
Why tour with Jome?
- No pressure toursTour at your own pace with no sales pressure
- Expert guidanceGet insights from our home buying experts
- Exclusive accessSee homes and deals not available elsewhere
Jome is featured in
Plan description
May also be listed on the Tradition Homes website
Information last verified by Jome: Thursday at 3:43 AM (April 16, 2026)
Plan details
- Name:
- 6032
- Property type:
- Floor plan
- Community:
- StarView – 74′
- Builder:
- Tradition Homes
- Size:
- 4,076 sqft
- Stories:
- 2
- Beds from:
- 4
- Beds to:
- 5
- Baths:
- 4
- Half baths:
- 1
- Garage spaces:
- 3
Plan features & finishes
- Garage/Parking:
- GarageAttached Garage
- Interior Features:
- Walk-In ClosetPantry
- Kitchen:
- Kitchen Island
- Laundry facilities:
- Utility/Laundry Room
- Property amenities:
- Two-Story Entry FoyerCovered Outdoor LivingFireplacePorch
- Rooms:
- Primary Bedroom On MainKitchenPowder RoomMedia RoomOffice/StudyDining RoomFamily RoomOpen Concept FloorplanPrimary Bedroom Downstairs
- Upgrade Options:
- Bay WindowsFormal Dining RoomSliding Glass DoorsLaundry SinkPowder RoomMedia RoomExtra BathroomOutdoor FireplaceDouble DoorsExtra BedroomExtended PatioLaundry Cabinets

Get a consultation with our New Homes Expert
- See how your home builds wealth
- Plan your home-buying roadmap
- Discover hidden gems
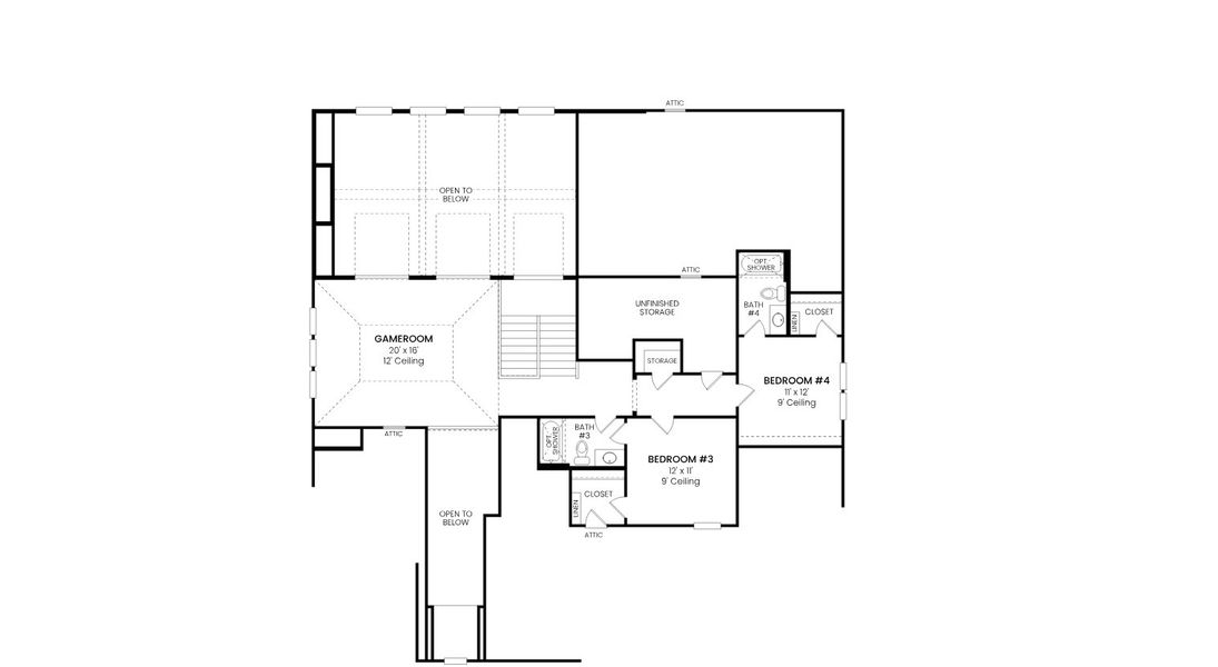
See the full plan layout
Download the floor plan PDF with room dimensions and home design details.

Instant download, no cost

Community details
StarView – 74′ at StarView
by Tradition Homes, Prosper, TX
- 4 homes
- 6 plans
- 3,560 - 4,929 sqft
View StarView – 74′ details
Want to know more about what's around here?
The 6032 floor plan is part of StarView – 74′, a new home community by Tradition Homes, located in Prosper, TX. Visit the StarView – 74′ community page for full neighborhood insights, including nearby schools, shopping, walk & bike-scores, commuting, air quality & natural hazards.

Available homes in StarView – 74′
- Home at address 131 Twilight Dr, Prosper, TX 75078

Home
Savings$1,149,900
- 4 bd
- 4.5 ba
- 3,961 sqft
131 Twilight Dr, Prosper, TX 75078
- Home at address 151 Twilight Dr, Prosper, TX 75078

Home
Savings$1,209,900
- 5 bd
- 5.5 ba
- 4,239 sqft
151 Twilight Dr, Prosper, TX 75078
- Home at address 591 Twilight Dr, Prosper, TX 75078

Plan 6051
Savings$1,349,900
- 5 bd
- 5.5 ba
- 4,929 sqft
591 Twilight Dr, Prosper, TX 75078
- Home at address 681 Capella Ct, Prosper, TX 75078

Plan 6051
Savings$1,434,900
- 5 bd
- 5.5 ba
- 4,840 sqft
681 Capella Ct, Prosper, TX 75078
More floor plans in StarView – 74′

Considering this plan?
Our expert will guide your tour, in-person or virtual
Need more information?
Text or call (888) 545-5198
Financials
Estimated monthly payment
Let us help you find your dream home
How many bedrooms are you looking for?
Similar homes nearby
Recently added communities in this area
Nearby communities in Prosper
New homes in nearby cities
More New Homes in Prosper, TX
- Jome
- New homes search
- Texas
- Dallas-Fort Worth Area
- Collin County
- Prosper
- StarView – 74′
- 680 Morning Star Ln, Prosper, TX 75078



























