



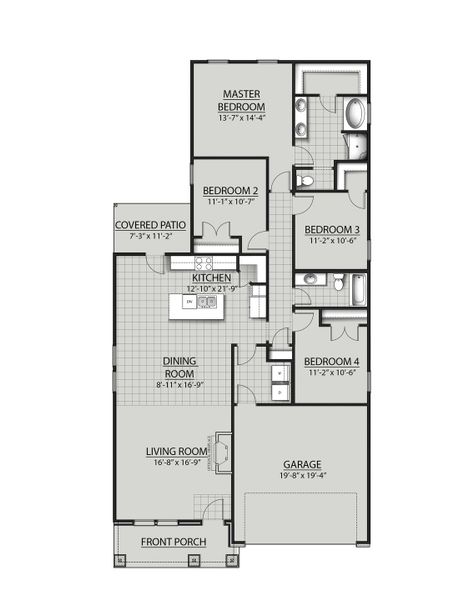
- 4 bd
- 2 ba
- 1,844 sqft
Oakridge V J plan in Mostyn Springs by DSLD Homes
New Homes for Sale Near 12782 Dina Springs Ln, Magnolia, TX 77354
About this Plan
May also be listed on the DSLD Homes website
Information last verified by Jome: Thursday at 3:07 AM (December 11, 2025)
Plan details
- Name:
- Oakridge V J
- Property status:
- Sold
- Size:
- 1,844 sqft
- Stories:
- 1
- Beds:
- 4
- Baths:
- 2
- Garage spaces:
- 2
Plan features & finishes
- Garage/Parking:
- Garage
- Rooms:
- Primary Bedroom On MainPrimary Bedroom Downstairs

Community details
Mostyn Springs
by DSLD Homes, Magnolia, TX
- 9 homes
- 30 plans
- 1,240 - 2,651 sqft
View Mostyn Springs details
Want to know more about what's around here?
The Oakridge V J floor plan is part of Mostyn Springs, a new home community by DSLD Homes, located in Magnolia, TX. Visit the Mostyn Springs community page for full neighborhood insights, including nearby schools, shopping, walk & bike-scores, commuting, air quality & natural hazards.

Available homes in Mostyn Springs
More floor plans in Mostyn Springs
Financials
Nearby communities in Magnolia
Homes in Magnolia by DSLD Homes
Recently added communities in this area
Other Builders in Magnolia, TX
Nearby sold homes
New homes in nearby cities
More New Homes in Magnolia, TX
- Jome
- New homes search
- Texas
- Greater Houston Area
- Montgomery County
- Magnolia
- Mostyn Springs
- 12782 Dina Springs Ln, Magnolia, TX 77354







































































