




















- 3 bd
- 2 ba
- 1,552 sqft
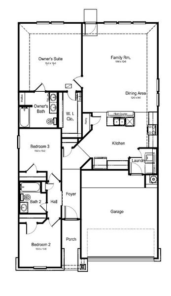
Garner plan in Pecan Orchard Estates by First America Homes
New Homes for Sale Near 602 Danielle, Dayton, TX 77535
About this Plan
May also be listed on the First America Homes website
Information last verified by Jome: Wednesday at 8:26 AM (November 12, 2025)
Plan details
- Name:
- Garner
- Property status:
- Sold
- Size:
- 1,552 sqft
- Stories:
- 1
- Beds:
- 3
- Baths:
- 2
- Garage spaces:
- 2
Plan features & finishes
- Garage/Parking:
- GarageAttached Garage
- Interior Features:
- Walk-In ClosetFoyerPantry
- Kitchen:
- Kitchen Island
- Laundry facilities:
- Utility/Laundry Room
- Property amenities:
- Porch
- Rooms:
- Primary Bedroom On MainKitchenDining RoomFamily RoomOpen Concept FloorplanPrimary Bedroom Downstairs

Community details
Pecan Orchard Estates
by First America Homes, Dayton, TX
- 2 homes
- 2,052 - 2,052 sqft
View Pecan Orchard Estates details
Want to know more about what's around here?
The Garner floor plan is part of Pecan Orchard Estates, a new home community by First America Homes, located in Dayton, TX. Visit the Pecan Orchard Estates community page for full neighborhood insights, including nearby schools, shopping, walk & bike-scores, commuting, air quality & natural hazards.

Available homes in Pecan Orchard Estates
Financials
Nearby communities in Dayton
Homes in Dayton by First America Homes
Recently added communities in this area
Other Builders in Dayton, TX
Nearby sold homes
New homes in nearby cities
More New Homes in Dayton, TX
- Home
- New homes
- Texas
- Greater Houston Area
- Liberty County
- Dayton
- Pecan Orchard Estates
- 602 Danielle, Dayton, TX 77535




































































