

Sold
- 5 bd
- 4 ba
- 2,778 sqft
2834 - The Redrock plan in Abbey Glen by D.R. Horton
Lubbock, TX
Last saved price from $364,990
New Homes for Sale Near 10518 Aberdeen Ave, Lubbock, TX 79424
About this Plan
This plan is sold. The information provided reflects details of the plan when it was on the market.
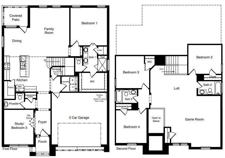
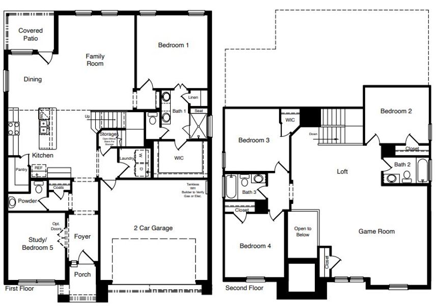
For families finding their rhythm with growing children, the 2834 - The Redrock's downstairs primary bedroom offers immediate convenience. This layout provides a private retreat on the main level, while upstairs, a loft and game room create separate zones for kids' activities and relaxation. The open concept kitchen, living, and dining areas ensure everyone stays connected during daily routines. You'll appreciate the practicalities of a two-story design featuring four bedrooms and three bathrooms across 2852 square feet. Storage is addressed with a spacious walk-in closet in the primary suite, and the main bath includes a walk-in shower for ease of use. This home, starting from $364,990, balances shared family spaces with personal retreats.
May also be listed on the D.R. Horton website
Information last verified by Jome: Monday at 9:37 AM (January 5, 2026)
Plan details
*Pricing and availability are subject to change.
- Name:
- 2834 - The Redrock
- Property type:
- Sold
- Community:
- Abbey Glen
- Builder:
- D.R. Horton
- Size:
- 2,778 sqft
- Stories:
- 2
- Beds:
- 5
- Baths:
- 4
- Garage spaces:
- 2
Plan features & finishes
- Garage/Parking:
- GarageAttached Garage
- Interior Features:
- Walk-In ClosetFoyerStorageStaircasesLoft
- Kitchen:
- Kitchen Island
- Laundry facilities:
- Utility/Laundry Room
- Property amenities:
- Covered Outdoor LivingPatioPorch
- Rooms:
- Primary Bedroom On MainKitchenPowder RoomGame RoomOffice/StudyDining RoomFamily RoomOpen Concept FloorplanPrimary Bedroom Downstairs
Want to know more about what's around here?
The 2834 - The Redrock floor plan is part of Abbey Glen, a new home community by D.R. Horton, located in Lubbock, TX. Visit the Abbey Glen community page for full neighborhood insights, including nearby schools, shopping, walk & bike-scores, commuting, air quality & natural hazards.

Nearby communities in Lubbock
Homes in Lubbock Neighborhoods
Homes in Lubbock by D.R. Horton
Recently added communities in this area
Other Builders in Lubbock, TX
Nearby sold homes
New homes in nearby cities
More New Homes in Lubbock, TX
Something doesn't look right on this page?
- Jome
- New homes search
- Texas
- Lubbock County
- Lubbock
- Abbey Glen
- 10518 Aberdeen Ave, Lubbock, TX 79424















































