









Book your tour. Save an average of $18,473. We'll handle the rest.
- Confirmed tours
- Get matched & compare top deals
- Expert help, no pressure
- No added fees
Estimated value based on Jome data, T&C apply
- 5 bd
- 4.5 ba
- 4,773 sqft
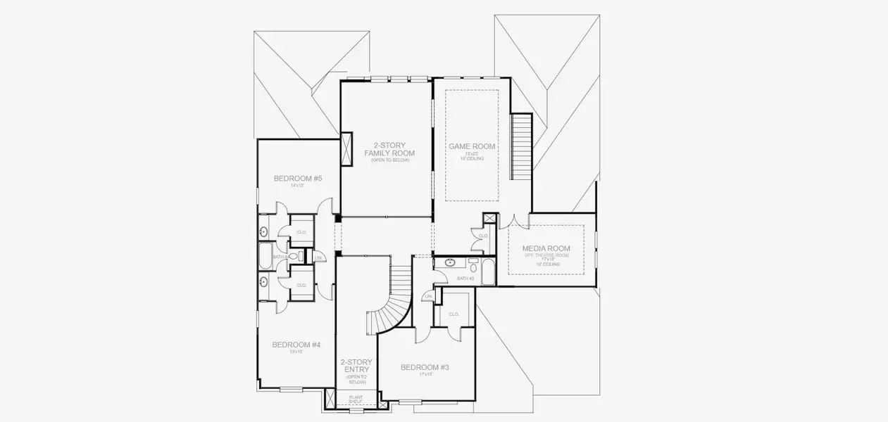
4773W plan in Johnson Ranch 70' by Perry Homes
Visit the community to experience this floor plan
Why tour with Jome?
- No pressure toursTour at your own pace with no sales pressure
- Expert guidanceGet insights from our home buying experts
- Exclusive accessSee homes and deals not available elsewhere
Jome is featured in
Plan description
May also be listed on the Perry Homes website
Information last verified by Jome: Today at 6:06 AM (January 11, 2026)
Plan details
- Name:
- 4773W
- Property status:
- Floor plan
- Lot width (feet):
- 70
- Size:
- 4,773 sqft
- Stories:
- 2
- Beds:
- 5
- Baths:
- 4
- Half baths:
- 1
- Garage spaces:
- 3
Plan features & finishes
- Garage/Parking:
- GarageAttached Garage
- Interior Features:
- Walk-In ClosetPantry
- Kitchen:
- Kitchen Island
- Laundry facilities:
- Utility/Laundry Room
- Property amenities:
- Two-Story Entry FoyerPatioFireplacePorch
- Rooms:
- Primary Bedroom On MainKitchenTwo-Story Great RoomGame RoomMedia RoomMudroomDining RoomBreakfast AreaPrimary Bedroom Downstairs
- Upgrade Options:
- Freestanding TubVanity at Halt BathCovered PatioTheatre RoomSliding DoorsExtended Patio
See the full plan layout
Download the floor plan PDF with room dimensions and home design details.

Instant download, no cost

Community details
Johnson Ranch 70' at Johnson Ranch
by Perry Homes, Bulverde, TX
- 7 homes
- 21 plans
- 3,130 - 4,994 sqft
View Johnson Ranch 70' details
Want to know more about what's around here?
The 4773W floor plan is part of Johnson Ranch 70', a new home community by Perry Homes, located in Bulverde, TX. Visit the Johnson Ranch 70' community page for full neighborhood insights, including nearby schools, shopping, walk & bike-scores, commuting, air quality & natural hazards.

Homes built from this plan
Available homes in Johnson Ranch 70'
- Home at address 31154 Osage Run, Bulverde, TX 78163

4263W
$949,900
- 5 bd
- 4.5 ba
- 4,263 sqft
31154 Osage Run, Bulverde, TX 78163
- Home at address 31179 Osage Run, Bulverde, TX 78163

4098W
$964,900
- 5 bd
- 4.5 ba
- 4,098 sqft
31179 Osage Run, Bulverde, TX 78163
- Home at address 31120 Clover Pass, Bulverde, TX 78163

4891W
$974,900
- 5 bd
- 4.5 ba
- 4,891 sqft
31120 Clover Pass, Bulverde, TX 78163
More floor plans in Johnson Ranch 70'

Considering this plan?
Our expert will guide your tour, in-person or virtual
Need more information?
Text or call (888) 486-2818
Financials
Estimated monthly payment
Similar homes nearby
Recently added communities in this area
Nearby communities in Bulverde
New homes in nearby cities
More New Homes in Bulverde, TX
- Jome
- New homes search
- Texas
- Greater San Antonio
- Comal County
- Bulverde
- Johnson Ranch 70'
- 31184 Clover Pass, Bulverde, TX 78163































