









- 4 bd
- 3.5 ba
- 3,102 sqft
Sacramento plan in Somerset - Phase 5 by John Houston Homes
New Homes for Sale Near 3401 Lakemont Dr, Venus, TX 76084
About this Plan
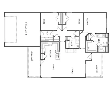
The Sacramento new home floor plan includes 4 bedrooms, 3.5 baths and a 2.5-car garage. This 2-story plan features a sweeping spiral staircase at entry with storage space underneath, study with French doors, custom cabinets, walk-in pantry, fireplace, covered patio, master bathroom with walk-in shower, soaker tub and dual vanities, large walk-in closet in master, jack and jill bathroom and upstairs game room. Options available for this plan include an upstairs media room, extended covered patio, box windows in nook, box or bay windows in master bedroom, luxury shower, deluxe master bath, and extended garage options. Options, square footage, room count, and room dimensions are approximate, subject to change without notice, and vary by elevation and community.
May also be listed on the John Houston Homes website
Information last verified by Jome: Tuesday at 2:45 AM (July 1, 2025)
Plan details
- Name:
- Sacramento
- Property status:
- Sold
- Size:
- 3,102 sqft
- Stories:
- 2
- Beds:
- 4
- Baths:
- 3
- Half baths:
- 1
- Garage spaces:
- 2
Plan features & finishes
- Garage/Parking:
- GarageAttached Garage
- Interior Features:
- Walk-In ClosetFoyerPantry
- Kitchen:
- Kitchen Island
- Laundry facilities:
- Utility/Laundry Room
- Property amenities:
- PatioPorch
- Rooms:
- Primary Bedroom On MainKitchenNookPowder RoomGame RoomMedia RoomOffice/StudyFamily RoomPrimary Bedroom Downstairs

Community details
Somerset - Phase 5 at Somerset
by John Houston Homes, Mansfield, TX
- 6 homes
- 19 plans
- 1,837 - 3,839 sqft
View Somerset - Phase 5 details
Want to know more about what's around here?
The Sacramento floor plan is part of Somerset - Phase 5, a new home community by John Houston Homes, located in Venus, TX. Visit the Somerset - Phase 5 community page for full neighborhood insights, including nearby schools, shopping, walk & bike-scores, commuting, air quality & natural hazards.

Available homes in Somerset - Phase 5
- Home at address 2109 Wexley, Mansfield, TX 76084

$569,900
Move-in ready- 4 bd
- 3.5 ba
- 2,774 sqft
2109 Wexley, Mansfield, TX 76084
- Home at address 2104 Redding Dr, Mansfield, TX 76084

$614,900
Move-in ready- 4 bd
- 3 ba
- 3,263 sqft
2104 Redding Dr, Mansfield, TX 76084
- Home at address 2118 Tilden Ln, Mansfield, TX 76084

$649,900
Move-in ready- 4 bd
- 3.5 ba
- 3,437 sqft
2118 Tilden Ln, Mansfield, TX 76084
- Home at address 2106 Redding Dr, Mansfield, TX 76084

$669,900
Move-in ready- 4 bd
- 3.5 ba
- 3,839 sqft
2106 Redding Dr, Mansfield, TX 76084
More floor plans in Somerset - Phase 5
Financials
Nearby communities in Venus
Homes in Venus by John Houston Homes
Recently added communities in this area
Other Builders in Venus, TX
Nearby sold homes
New homes in nearby cities
More New Homes in Venus, TX
- Jome
- New homes search
- Texas
- Dallas-Fort Worth Area
- Ellis County
- Venus
- Somerset - Phase 5
- 3401 Lakemont Dr, Venus, TX 76084




































































