








Book your tour. Save an average of $18,473. We'll handle the rest.
We collect exclusive builder offers, book your tours, and support you from start to housewarming.
- Confirmed tours
- Get matched & compare top deals
- Expert help, no pressure
- No added fees
Estimated value based on Jome data, T&C apply




















- 5 bd
- 3 ba
- 2,382 sqft
Silver Maple II plan in Heath Golf & Yacht Villas by K. Hovnanian® Homes
Visit the community to experience this floor plan
Why tour with Jome?
- No pressure toursTour at your own pace with no sales pressure
- Expert guidanceGet insights from our home buying experts
- Exclusive accessSee homes and deals not available elsewhere
Jome is featured in
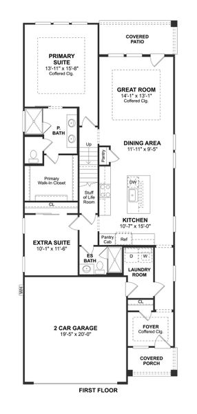
Plan description
May also be listed on the K. Hovnanian® Homes website
Information last verified by Jome: Today at 6:02 PM (April 14, 2026)
Plan details
- Name:
- Silver Maple II
- Property type:
- Floor plan
- Community:
- Heath Golf & Yacht Villas
- Builder:
- K. Hovnanian® Homes
- Size:
- 2,382 sqft
- Stories:
- 2
- Beds:
- 5
- Baths:
- 3
- Garage spaces:
- 2
Plan features & finishes
- Garage/Parking:
- GarageAttached Garage
- Interior Features:
- Walk-In ClosetFoyerPantryLoft
- Kitchen:
- Kitchen Island
- Laundry facilities:
- Utility/Laundry Room
- Property amenities:
- PatioPorch
- Rooms:
- Bonus RoomPrimary Bedroom On MainKitchenDining RoomFamily RoomOpen Concept FloorplanPrimary Bedroom Downstairs
- Upgrade Options:
- Sliding DoorsFireplace

Get a consultation with our New Homes Expert
- See how your home builds wealth
- Plan your home-buying roadmap
- Discover hidden gems
See the full plan layout
Download the floor plan PDF with room dimensions and home design details.

Instant download, no cost

Community details
Heath Golf & Yacht Villas at Heath Golf & Yacht
by K. Hovnanian® Homes, Heath, TX
- 9 homes
- 6 plans
- 1,616 - 2,916 sqft
View Heath Golf & Yacht Villas details
Want to know more about what's around here?
The Silver Maple II floor plan is part of Heath Golf & Yacht Villas, a new home community by K. Hovnanian® Homes, located in Heath, TX. Visit the Heath Golf & Yacht Villas community page for full neighborhood insights, including nearby schools, shopping, walk & bike-scores, commuting, air quality & natural hazards.

Homes built from this plan
Available homes in Heath Golf & Yacht Villas
- Home at address 2527 Compassion Ct, Heath, TX 75032

Hampton
$489,000
- 5 bd
- 3.5 ba
- 2,905 sqft
2527 Compassion Ct, Heath, TX 75032
- Home at address 2503 Compassion Ct, Heath, TX 75126

Hampton
$562,730
- 5 bd
- 3.5 ba
- 2,905 sqft
2503 Compassion Ct, Heath, TX 75126
More floor plans in Heath Golf & Yacht Villas

Considering this plan?
Our expert will guide your tour, in-person or virtual
Need more information?
Text or call (888) 545-5198
Financials
Estimated monthly payment
Let us help you find your dream home
How many bedrooms are you looking for?
Similar homes nearby
Recently added communities in this area
Nearby communities in Heath
New homes in nearby cities
More New Homes in Heath, TX
- Jome
- New homes search
- Texas
- Dallas-Fort Worth Area
- Kaufman County
- Heath
- Heath Golf & Yacht Villas
- 2703 Ella Joy Ct, Heath, TX 75032




























