













Book your tour. Save an average of $18,473. We'll handle the rest.
- Confirmed tours
- Get matched & compare top deals
- Expert help, no pressure
- No added fees
Estimated value based on Jome data, T&C apply
- 5 bd
- 3 ba
- 2,569 sqft
Sabine plan in Mayfair by Scott Felder Homes
Visit the community to experience this floor plan
Why tour with Jome?
- No pressure toursTour at your own pace with no sales pressure
- Expert guidanceGet insights from our home buying experts
- Exclusive accessSee homes and deals not available elsewhere
Jome is featured in
Plan description
May also be listed on the Scott Felder Homes website
Information last verified by Jome: Yesterday at 2:00 PM (January 13, 2026)
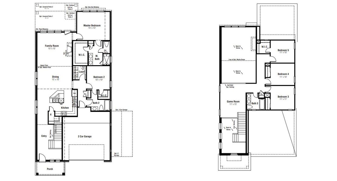
Plan details
- Name:
- Sabine
- Property status:
- Floor plan
- Size:
- 2,569 sqft
- Stories:
- 2
- Beds:
- 5
- Baths from:
- 3
- Baths to:
- 4
- Garage spaces:
- 2
Plan features & finishes
- Garage/Parking:
- GarageAttached Garage
- Interior Features:
- Walk-In ClosetPantry
- Laundry facilities:
- Utility/Laundry Room
- Property amenities:
- PatioPorch
- Rooms:
- Primary Bedroom On MainKitchenGame RoomDining RoomFamily RoomPrimary Bedroom Downstairs

Get a consultation with our New Homes Expert
- See how your home builds wealth
- Plan your home-buying roadmap
- Discover hidden gems
See the full plan layout
Download the floor plan PDF with room dimensions and home design details.

Instant download, no cost

Community details
Mayfair at Mayfair
by Scott Felder Homes, New Braunfels, TX
- 18 homes
- 24 plans
- 1,019 - 2,888 sqft
View Mayfair details
Want to know more about what's around here?
The Sabine floor plan is part of Mayfair, a new home community by Scott Felder Homes, located in New Braunfels, TX. Visit the Mayfair community page for full neighborhood insights, including nearby schools, shopping, walk & bike-scores, commuting, air quality & natural hazards.

Available homes in Mayfair
- Home at address 139 Trifle, New Braunfels, TX 78130

Home
$287,990
- 2 bd
- 2 ba
- 1,019 sqft
139 Trifle, New Braunfels, TX 78130
- Home at address 135 Trifle Trl, New Braunfels, TX 78130

Cactus
$294,990
- 2 bd
- 2.5 ba
- 1,230 sqft
135 Trifle Trl, New Braunfels, TX 78130
- Home at address 135 Trifle, New Braunfels, TX 78130

Home
$294,990
- 2 bd
- 2.5 ba
- 1,230 sqft
135 Trifle, New Braunfels, TX 78130
- Home at address 115 Trifle Trl, New Braunfels, TX 78130

Daisy
$313,990
- 3 bd
- 2.5 ba
- 1,392 sqft
115 Trifle Trl, New Braunfels, TX 78130
- Home at address 123 Trifle, New Braunfels, TX 78130

Home
$324,990
- 3 bd
- 2.5 ba
- 1,384 sqft
123 Trifle, New Braunfels, TX 78130
- Home at address 123 Trifle Trl, New Braunfels, TX 78130

Daisy
$324,990
- 3 bd
- 2.5 ba
- 1,384 sqft
123 Trifle Trl, New Braunfels, TX 78130
More floor plans in Mayfair

Considering this plan?
Our expert will guide your tour, in-person or virtual
Need more information?
Text or call (888) 486-2818
Financials
Estimated monthly payment
Let us help you find your dream home
How many bedrooms are you looking for?
Similar homes nearby
Recently added communities in this area
Nearby communities in New Braunfels
New homes in nearby cities
More New Homes in New Braunfels, TX
- Jome
- New homes search
- Texas
- Greater San Antonio
- Comal County
- New Braunfels
- Mayfair
- 149 Radnor Rd, New Braunfels, TX 78130


























