









Book your tour. Save an average of $18,473. We'll handle the rest.
We collect exclusive builder offers, book your tours, and support you from start to housewarming.
- Confirmed tours
- Get matched & compare top deals
- Expert help, no pressure
- No added fees
Estimated value based on Jome data, T&C apply
- 4 bd
- 3.5 ba
- 2,424 sqft
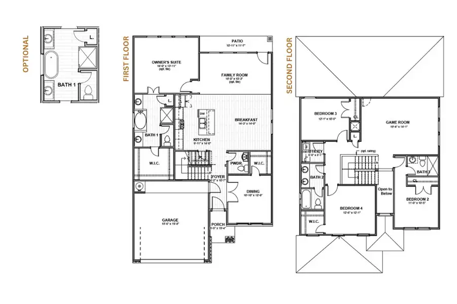
James 2424 S plan in Butler Farms by Saratoga Homes
Visit the community to experience this floor plan
Why tour with Jome?
- No pressure toursTour at your own pace with no sales pressure
- Expert guidanceGet insights from our home buying experts
- Exclusive accessSee homes and deals not available elsewhere
Jome is featured in
Plan description
May also be listed on the Saratoga Homes website
Information last verified by Jome: Thursday at 2:31 PM (February 26, 2026)
Plan details
- Name:
- James 2424 S
- Property type:
- Floor plan
- Community:
- Butler Farms
- Builder:
- Saratoga Homes
- Size:
- 2,424 sqft
- Stories:
- 2
- Beds:
- 4
- Baths:
- 3
- Half baths:
- 1
- Garage spaces:
- 2
Plan features & finishes
- Garage/Parking:
- GarageAttached Garage
- Interior Features:
- Walk-In ClosetFoyerPantry
- Kitchen:
- Kitchen Island
- Laundry facilities:
- Utility/Laundry Room
- Property amenities:
- PatioPorch
- Rooms:
- Primary Bedroom On MainKitchenPowder RoomGame RoomDining RoomFamily RoomBreakfast AreaPrimary Bedroom Downstairs
- Upgrade Options:
- Alternate Primary Bath

Get a consultation with our New Homes Expert
- See how your home builds wealth
- Plan your home-buying roadmap
- Discover hidden gems
See the full plan layout
Download the floor plan PDF with room dimensions and home design details.

Instant download, no cost

Community details
Butler Farms
by Saratoga Homes, Liberty Hill, TX
- 4 homes
- 8 plans
- 1,717 - 2,815 sqft
View Butler Farms details
Want to know more about what's around here?
The James 2424 S floor plan is part of Butler Farms, a new home community by Saratoga Homes, located in Liberty Hill, TX. Visit the Butler Farms community page for full neighborhood insights, including nearby schools, shopping, walk & bike-scores, commuting, air quality & natural hazards.

Homes built from this plan
Available homes in Butler Farms
- Home at address 105 Boulder Ridge Trl, Liberty Hill, TX 78642

Mia 1717 S
$369,950
- 3 bd
- 3 ba
- 1,722 sqft
105 Boulder Ridge Trl, Liberty Hill, TX 78642
- Home at address 134 Arena Dr, Liberty Hill, TX 78642

Lexington 2012 S
$399,950
- 3 bd
- 2 ba
- 2,109 sqft
134 Arena Dr, Liberty Hill, TX 78642
- Home at address 224 Ironshoe Trl, Liberty Hill, TX 78642

Lexington 2012 S GR
$434,450
- 3 bd
- 3 ba
- 2,500 sqft
224 Ironshoe Trl, Liberty Hill, TX 78642
More floor plans in Butler Farms

Considering this plan?
Our expert will guide your tour, in-person or virtual
Need more information?
Text or call (888) 488-9243
Financials
Estimated monthly payment
Let us help you find your dream home
How many bedrooms are you looking for?
Similar homes nearby
Recently added communities in this area
Nearby communities in Liberty Hill
New homes in nearby cities
More New Homes in Liberty Hill, TX
- Jome
- New homes search
- Texas
- Greater Austin Area
- Williamson County
- Liberty Hill
- Butler Farms
- 501 Dove Crest Cv, Liberty Hill, TX 78642






























