













Book your tour. Save an average of $18,473. We'll handle the rest.
We collect exclusive builder offers, book your tours, and support you from start to housewarming.
- Confirmed tours
- Get matched & compare top deals
- Expert help, no pressure
- No added fees
Estimated value based on Jome data, T&C apply
















- 4 bd
- 3.5 ba
- 3,598 sqft
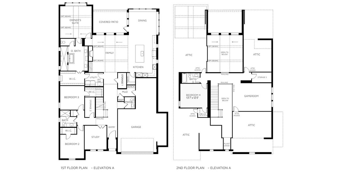
Ashland III plan in Windsong Ranch 71' Series by Southgate Homes
Visit the community to experience this floor plan
Why tour with Jome?
- No pressure toursTour at your own pace with no sales pressure
- Expert guidanceGet insights from our home buying experts
- Exclusive accessSee homes and deals not available elsewhere
Jome is featured in
Plan description
May also be listed on the Southgate Homes website
Information last verified by Jome: Sunday at 1:27 PM (February 15, 2026)
Plan details
- Name:
- Ashland III
- Property status:
- Floor plan
- Lot width (feet):
- 71
- Size:
- 3,598 sqft
- Stories:
- 2
- Beds:
- 4
- Baths:
- 3.5
- Garage spaces:
- 3.5
- HERS index:
- 62
Plan features & finishes
- Garage/Parking:
- GarageAttached Garage
- Interior Features:
- Walk-In ClosetPantry
- Kitchen:
- Kitchen Island
- Laundry facilities:
- Utility/Laundry Room
- Property amenities:
- Patio
- Rooms:
- Primary Bedroom On MainKitchenPowder RoomGame RoomMedia RoomOffice/StudyDining RoomFamily RoomOpen Concept FloorplanPrimary Bedroom Downstairs
- Upgrade Options:
- Media RoomExtra BathroomOutdoor FireplaceSliding DoorsExtra BedroomShower

Get a consultation with our New Homes Expert
- See how your home builds wealth
- Plan your home-buying roadmap
- Discover hidden gems
See the full plan layout
Download the floor plan PDF with room dimensions and home design details.

Instant download, no cost

Community details
Windsong Ranch 71' Series at Windsong Ranch
by Southgate Homes, Prosper, TX
- 2 homes
- 10 plans
- 3,279 - 4,499 sqft
View Windsong Ranch 71' Series details
Want to know more about what's around here?
The Ashland III floor plan is part of Windsong Ranch 71' Series, a new home community by Southgate Homes, located in Prosper, TX. Visit the Windsong Ranch 71' Series community page for full neighborhood insights, including nearby schools, shopping, walk & bike-scores, commuting, air quality & natural hazards.

Homes built from this plan
Available homes in Windsong Ranch 71' Series
- Home at address 1120 Whirlabout Rd, Prosper, TX 75078

Hayden
$1,335,063
- 5 bd
- 5.5 ba
- 4,499 sqft
1120 Whirlabout Rd, Prosper, TX 75078
More floor plans in Windsong Ranch 71' Series

Considering this plan?
Our expert will guide your tour, in-person or virtual
Need more information?
Text or call (888) 488-9243
Financials
Estimated monthly payment
Let us help you find your dream home
How many bedrooms are you looking for?
Similar homes nearby
Recently added communities in this area
Nearby communities in Prosper
New homes in nearby cities
More New Homes in Prosper, TX
- Jome
- New homes search
- Texas
- Dallas-Fort Worth Area
- Denton County
- Prosper
- Windsong Ranch 71' Series
- 3631 Whimbrel Ct, Prosper, TX 75078




























