








Book your tour. Save an average of $18,473. We'll handle the rest.
We collect exclusive builder offers, book your tours, and support you from start to housewarming.
- Confirmed tours
- Get matched & compare top deals
- Expert help, no pressure
- No added fees
Estimated value based on Jome data, T&C apply
























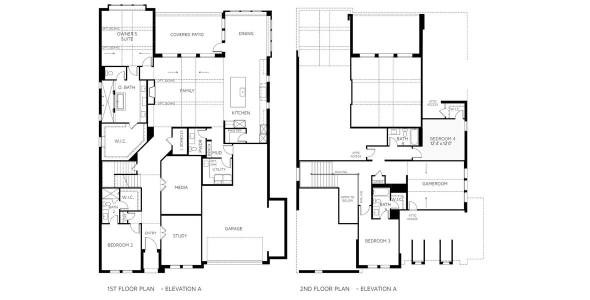
- 4 bd
- 4.5 ba
- 3,936 sqft
Madison II plan in Windsong Ranch 71' Series by Southgate Homes
Visit the community to experience this floor plan
Why tour with Jome?
- No pressure toursTour at your own pace with no sales pressure
- Expert guidanceGet insights from our home buying experts
- Exclusive accessSee homes and deals not available elsewhere
Jome is featured in
Plan description
May also be listed on the Southgate Homes website
Information last verified by Jome: Wednesday at 10:21 AM (May 20, 2026)
Plan details
- Name:
- Madison II
- Property type:
- Floor plan
- Community:
- Windsong Ranch 71' Series
- Builder:
- Southgate Homes
- Lot width (feet):
- 71
- Size:
- 3,936 sqft
- Stories:
- 2
- Beds:
- 4
- Baths:
- 4.5
- Garage spaces:
- 3.5
- HERS index:
- 64
Plan features & finishes
- Garage/Parking:
- GarageAttached Garage
- Interior Features:
- Walk-In ClosetPantry
- Kitchen:
- Kitchen Island
- Laundry facilities:
- Utility/Laundry Room
- Property amenities:
- Patio
- Rooms:
- Primary Bedroom On MainKitchenGame RoomMedia RoomOffice/StudyMudroomDining RoomFamily RoomOpen Concept FloorplanPrimary Bedroom Downstairs
- Upgrade Options:
- Extra BathroomOutdoor FireplaceSliding DoorsExtra BedroomShower

Get a consultation with our New Homes Expert
- See how your home builds wealth
- Plan your home-buying roadmap
- Discover hidden gems
See the full plan layout
Download the floor plan PDF with room dimensions and home design details.

Instant download, no cost

Community details
Windsong Ranch 71' Series at Windsong Ranch
by Southgate Homes, Prosper, TX
- 6 homes
- 10 plans
- 3,279 - 4,499 sqft
View Windsong Ranch 71' Series details
Want to know more about what's around here?
The Madison II floor plan is part of Windsong Ranch 71' Series, a new home community by Southgate Homes, located in Prosper, TX. Visit the Windsong Ranch 71' Series community page for full neighborhood insights, including nearby schools, shopping, walk & bike-scores, commuting, air quality & natural hazards.

Available homes in Windsong Ranch 71' Series
- Home at address 4020 Gambel Rd, Prosper, TX 75078

Home
Savings$1,150,000
- 5 bd
- 5.5 ba
- 4,298 sqft
4020 Gambel Rd, Prosper, TX 75078
- Home at address 3561 Whimbrel Ct, Prosper, TX 75078

Ashland III
Savings$1,173,900
- 5 bd
- 5.5 ba
- 4,026 sqft
3561 Whimbrel Ct, Prosper, TX 75078
- Home at address 1120 Whirlabout Rd, Prosper, TX 75078

Hayden
Savings$1,274,900
- 5 bd
- 5.5 ba
- 4,499 sqft
1120 Whirlabout Rd, Prosper, TX 75078
- Home at address 1130 Arlong Park Dr, Prosper, TX 75078

Home
Savings$1,279,965
- 5 bd
- 5.5 ba
- 4,470 sqft
1130 Arlong Park Dr, Prosper, TX 75078
- Home at address 3661 Whimbrel Ct, Prosper, TX 75078

Home
Savings$1,319,787
- 5 bd
- 5.5 ba
- 4,499 sqft
3661 Whimbrel Ct, Prosper, TX 75078
- Home at address 4080 Berylline Ln, Prosper, TX 75078

Kimball
Savings$1,340,157
- 5 bd
- 5.5 ba
- 4,415 sqft
4080 Berylline Ln, Prosper, TX 75078
More floor plans in Windsong Ranch 71' Series

Considering this plan?
Our expert will guide your tour, in-person or virtual
Need more information?
Text or call (888) 545-5198
Financials
Estimated monthly payment
Let us help you find your dream home
How many bedrooms are you looking for?
Similar homes nearby
Recently added communities in this area
Nearby communities in Prosper
New homes in nearby cities
More New Homes in Prosper, TX
- Jome
- New homes search
- Texas
- Dallas-Fort Worth Area
- Denton County
- Prosper
- Windsong Ranch 71' Series
- 3631 Whimbrel Ct, Prosper, TX 75078




























