








Book your tour. Save an average of $18,473. We'll handle the rest.
We collect exclusive builder offers, book your tours, and support you from start to housewarming.
- Confirmed tours
- Get matched & compare top deals
- Expert help, no pressure
- No added fees
Estimated value based on Jome data, T&C apply

































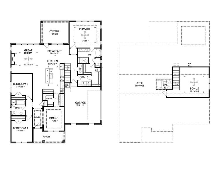
- 3 bd
- 2.5 ba
- 2,494 sqft
Collinsville III plan in Marlon's Creek by Regent Homes
Visit the community to experience this floor plan
Why tour with Jome?
- No pressure toursTour at your own pace with no sales pressure
- Expert guidanceGet insights from our home buying experts
- Exclusive accessSee homes and deals not available elsewhere
Jome is featured in
Plan description
May also be listed on the Regent Homes website
Information last verified by Jome: Today at 12:07 PM (April 1, 2026)
Book your tour. Save an average of $18,473. We'll handle the rest.
We collect exclusive builder offers, book your tours, and support you from start to housewarming.
- Confirmed tours
- Get matched & compare top deals
- Expert help, no pressure
- No added fees
Estimated value based on Jome data, T&C apply
Plan details
- Name:
- Collinsville III
- Property type:
- Floor plan
- Community:
- Marlon's Creek
- Builder:
- Regent Homes
- Size:
- 2,494 sqft
- Stories:
- 1
- Beds:
- 3
- Baths:
- 2
- Half baths:
- 1
- Garage spaces:
- 2
Plan features & finishes
- Garage/Parking:
- Garage
- Rooms:
- Primary Bedroom On MainPrimary Bedroom Downstairs

Get a consultation with our New Homes Expert
- See how your home builds wealth
- Plan your home-buying roadmap
- Discover hidden gems

Community details
Marlon's Creek
by Regent Homes, Spring Hill, TN
- 5 homes
- 15 plans
- 1,516 - 2,635 sqft
View Marlon's Creek details
Want to know more about what's around here?
The Collinsville III floor plan is part of Marlon's Creek, a new home community by Regent Homes, located in Spring Hill, TN. Visit the Marlon's Creek community page for full neighborhood insights, including nearby schools, shopping, walk & bike-scores, commuting, air quality & natural hazards.

Available homes in Marlon's Creek
- Home at address 1823 Flatwaters St, Unit 14, Spring Hill, TN 37174

Asher SFH
$499,900
- 3 bd
- 2 ba
- 1,516 sqft
1823 Flatwaters St, Unit 14, Spring Hill, TN 37174
- Home at address 1825 Flatwaters St, Unit 13, Spring Hill, TN 37174

Valley View
$528,350
- 3 bd
- 2.5 ba
- 2,010 sqft
1825 Flatwaters St, Unit 13, Spring Hill, TN 37174
- Home at address 1827 Flatwaters St, Unit 12, Spring Hill, TN 37174

Titusville II
$602,550
- 4 bd
- 3.5 ba
- 2,282 sqft
1827 Flatwaters St, Unit 12, Spring Hill, TN 37174
- Home at address 1824 Flatwaters St, Unit 31, Spring Hill, TN 37174

Ashville
$603,475
- 3 bd
- 2.5 ba
- 2,343 sqft
1824 Flatwaters St, Unit 31, Spring Hill, TN 37174
- Home at address 1710 Lasea Rd, Unit 10, Spring Hill, TN 37174

Granny White LX
$611,850
- 3 bd
- 2 ba
- 1,908 sqft
1710 Lasea Rd, Unit 10, Spring Hill, TN 37174
More floor plans in Marlon's Creek

Considering this plan?
Our expert will guide your tour, in-person or virtual
Need more information?
Text or call (888) 545-5198
Financials
Estimated monthly payment
Let us help you find your dream home
How many bedrooms are you looking for?
Similar homes nearby
Recently added communities in this area
Nearby communities in Spring Hill
New homes in nearby cities
More New Homes in Spring Hill, TN
- Jome
- New homes search
- Tennessee
- Nashville-Memphis Area
- Maury County
- Spring Hill
- Marlon's Creek
- 1686 Lasea Rd, Spring Hill, TN 37174































