

- 3 bd
- 3.5 ba
- 3,009 sqft
Delta plan in Proximity by Red Seal Homes
New Homes for Sale Near 611 Live Life Ln, Nashville, TN 37207
About this Plan
May also be listed on the Red Seal Homes website
Information last verified by Jome: Wednesday at 10:54 AM (April 15, 2026)
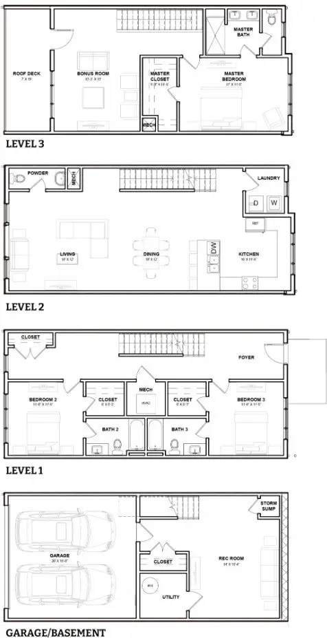
Plan details
- Name:
- Delta
- Property type:
- Sold
- Community:
- Proximity
- Builder:
- Red Seal Homes
- Neighborhood:
- Haynes Area
- Size:
- 3,009 sqft
- Stories:
- 3+
- Beds:
- 3
- Baths:
- 3
- Half baths:
- 1
- Garage spaces:
- 2
Plan features & finishes
- Garage/Parking:
- GarageAttached Garage
- Interior Features:
- Walk-In ClosetFoyer
- Laundry facilities:
- Utility/Laundry Room
- Property amenities:
- Rooftop Terrace
- Rooms:
- Bonus RoomKitchenPowder RoomDining RoomLiving RoomPrimary Bedroom Upstairs
See the full plan layout
Download the floor plan PDF with room dimensions and home design details.

Instant download, no cost
Want to know more about what's around here?
The Delta floor plan is part of Proximity, a new home community by Red Seal Homes, located in Nashville, TN. Visit the Proximity community page for full neighborhood insights, including nearby schools, shopping, walk & bike-scores, commuting, air quality & natural hazards.

Financials
Nearby communities in Nashville
Homes in Nashville Neighborhoods
Homes in Nashville by Red Seal Homes
Recently added communities in this area
Other Builders in Nashville, TN
Nearby sold homes
New homes in nearby cities
More New Homes in Nashville, TN
- Jome
- New homes search
- Tennessee
- Nashville-Memphis Area
- Davidson County
- Nashville
- Proximity
- 611 Live Life Ln, Nashville, TN 37207































































