



- 4 bd
- 4.5 ba
- 3,804 sqft
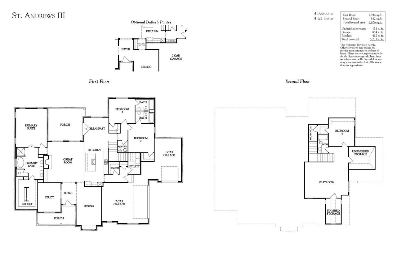
St Andrews III plan in Tiburon by Turnberry Homes
New Homes for Sale Near 9928 Maupin Rd, Brentwood, TN 37027
About this Plan
May also be listed on the Turnberry Homes website
Information last verified by Jome: Friday at 1:04 PM (April 3, 2026)
Plan details
- Name:
- St Andrews III
- Property type:
- Sold
- Community:
- Tiburon
- Builder:
- Turnberry Homes
- Size:
- 3,804 sqft
- Stories:
- 2
- Beds:
- 4
- Baths:
- 4
- Half baths:
- 1
- Garage spaces:
- 2
Plan features & finishes
- Garage/Parking:
- GarageAttached Garage
- Interior Features:
- Walk-In ClosetFoyerPantry
- Laundry facilities:
- Utility/Laundry Room
- Property amenities:
- Porch
- Rooms:
- Great RoomKitchenPowder RoomGame RoomOffice/StudyDining RoomBreakfast AreaPrimary Bedroom Downstairs
- Upgrade Options:
- Butler’s Pantry
See the full plan layout
Download the floor plan PDF with room dimensions and home design details.

Instant download, no cost
Want to know more about what's around here?
The St Andrews III floor plan is part of Tiburon, a new home community by Turnberry Homes, located in Brentwood, TN. Visit the Tiburon community page for full neighborhood insights, including nearby schools, shopping, walk & bike-scores, commuting, air quality & natural hazards.

Financials
Nearby communities in Brentwood
Homes in Brentwood by Turnberry Homes
Recently added communities in this area
Other Builders in Brentwood, TN
Nearby sold homes
New homes in nearby cities
More New Homes in Brentwood, TN
- Jome
- New homes search
- Tennessee
- Nashville-Memphis Area
- Williamson County
- Brentwood
- Tiburon
- 9928 Maupin Rd, Brentwood, TN 37027


























































