



Book your tour. Save an average of $18,473. We'll handle the rest.
We collect exclusive builder offers, book your tours, and support you from start to housewarming.
- Confirmed tours
- Get matched & compare top deals
- Expert help, no pressure
- No added fees
Estimated value based on Jome data, T&C apply
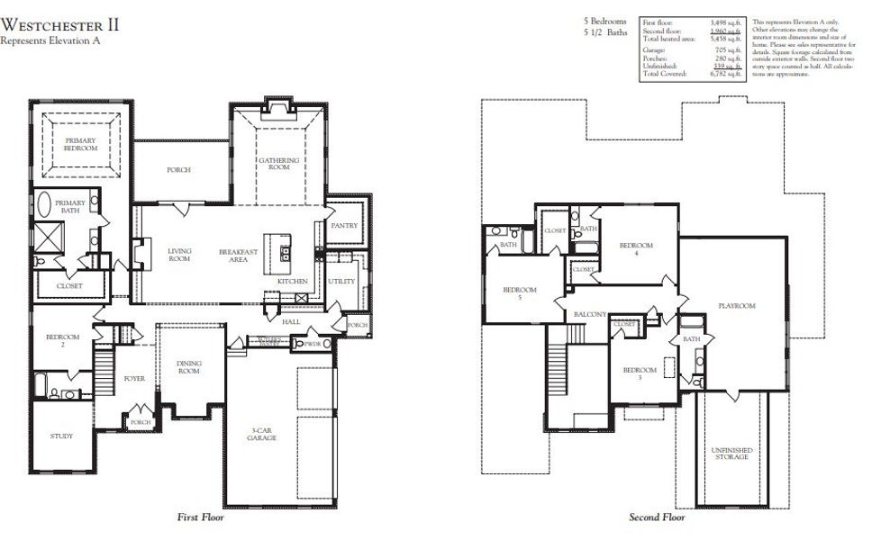
- 5 bd
- 5.5 ba
- 5,458 sqft
Westchester II plan in Calistoga by Turnberry Homes
Visit the community to experience this floor plan
Why tour with Jome?
- No pressure toursTour at your own pace with no sales pressure
- Expert guidanceGet insights from our home buying experts
- Exclusive accessSee homes and deals not available elsewhere
Jome is featured in
Plan description
May also be listed on the Turnberry Homes website
Information last verified by Jome: Friday at 4:05 AM (April 10, 2026)
Plan details
- Name:
- Westchester II
- Property type:
- Floor plan
- Community:
- Calistoga
- Builder:
- Turnberry Homes
- Size:
- 5,458 sqft
- Stories:
- 2
- Beds:
- 5
- Baths:
- 5
- Half baths:
- 1
- Garage spaces:
- 2
Plan features & finishes
- Garage/Parking:
- GarageAttached Garage
- Interior Features:
- Walk-In ClosetFoyerPantry
- Laundry facilities:
- Utility/Laundry Room
- Property amenities:
- Porch
- Rooms:
- KitchenEntry HallPowder RoomGame RoomDining RoomLiving RoomBreakfast AreaPrimary Bedroom Downstairs

Get a consultation with our New Homes Expert
- See how your home builds wealth
- Plan your home-buying roadmap
- Discover hidden gems
See the full plan layout
Download the floor plan PDF with room dimensions and home design details.

Instant download, no cost

Community details
Calistoga
by Turnberry Homes, Brentwood, TN
- 4 plans
- 3,814 - 5,458 sqft
View Calistoga details
Want to know more about what's around here?
The Westchester II floor plan is part of Calistoga, a new home community by Turnberry Homes, located in Brentwood, TN. Visit the Calistoga community page for full neighborhood insights, including nearby schools, shopping, walk & bike-scores, commuting, air quality & natural hazards.

More floor plans in Calistoga

Considering this plan?
Our expert will guide your tour, in-person or virtual
Need more information?
Text or call (888) 545-5198
Financials
Estimated monthly payment
Let us help you find your dream home
How many bedrooms are you looking for?



















