



Book your tour. Save an average of $18,473. We'll handle the rest.
We collect exclusive builder offers, book your tours, and support you from start to housewarming.
- Confirmed tours
- Get matched & compare top deals
- Expert help, no pressure
- No added fees
Estimated value based on Jome data, T&C apply
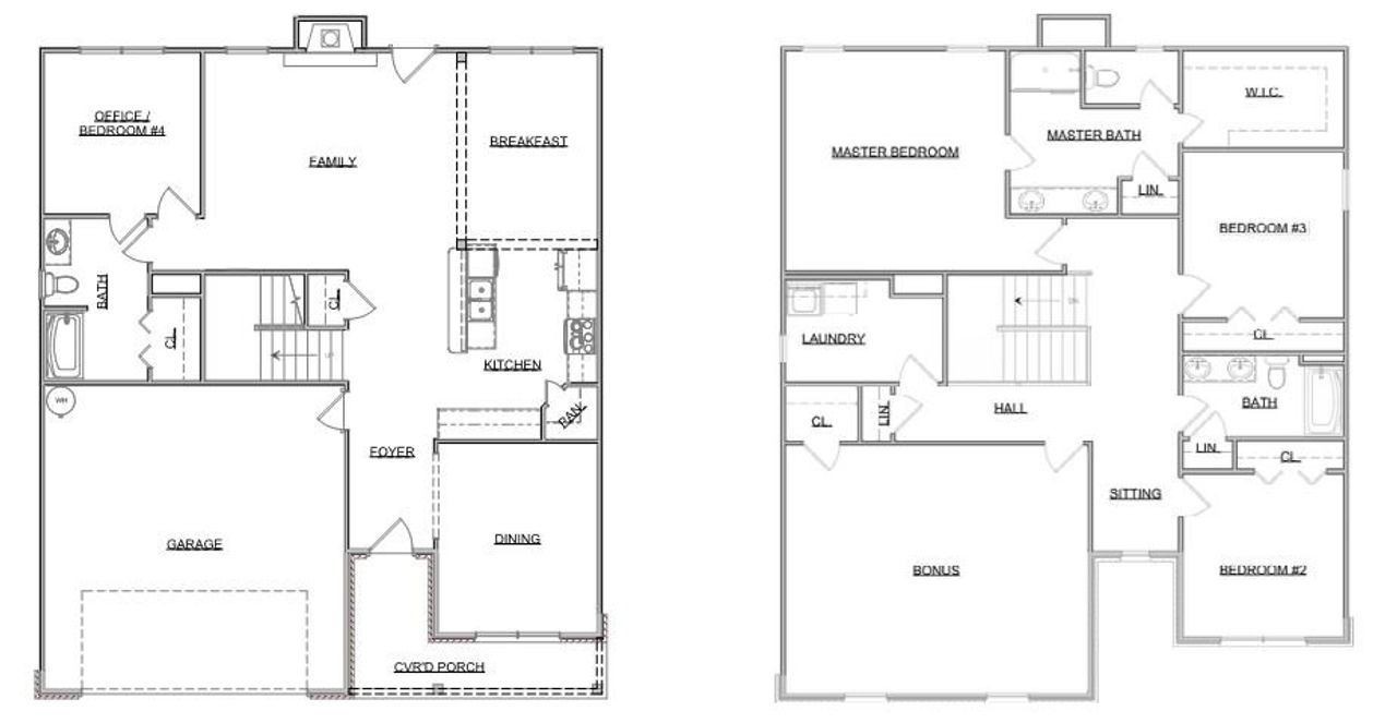
- 4 bd
- 3 ba
- 2,910 sqft
The Huntington plan in Honey Oaks by Smithbilt Homes
Visit the community to experience this floor plan
Why tour with Jome?
- No pressure toursTour at your own pace with no sales pressure
- Expert guidanceGet insights from our home buying experts
- Exclusive accessSee homes and deals not available elsewhere
Jome is featured in
Plan description
May also be listed on the Smithbilt Homes website
Information last verified by Jome: Friday at 12:45 PM (February 27, 2026)
Plan details
- Name:
- The Huntington
- Property type:
- Floor plan
- Community:
- Honey Oaks
- Builder:
- Smithbilt Homes
- Size:
- 2,910 sqft
- Stories:
- 2
- Beds:
- 4
- Baths:
- 3
- Garage spaces:
- 2
Plan features & finishes
- Garage/Parking:
- GarageAttached Garage
- Interior Features:
- Walk-In ClosetFoyerPantry
- Laundry facilities:
- Utility/Laundry Room
- Property amenities:
- FireplacePorch
- Rooms:
- Bonus RoomSitting AreaKitchenOffice/StudyDining RoomFamily RoomBreakfast AreaOpen Concept FloorplanPrimary Bedroom Upstairs
- Upgrade Options:
- Extra Bedroom

Get a consultation with our New Homes Expert
- See how your home builds wealth
- Plan your home-buying roadmap
- Discover hidden gems
See the full plan layout
Download the floor plan PDF with room dimensions and home design details.

Instant download, no cost

Community details
Honey Oaks
by Smithbilt Homes, Corryton, TN
- 18 plans
- 1,756 - 2,910 sqft
View Honey Oaks details
Want to know more about what's around here?
The The Huntington floor plan is part of Honey Oaks, a new home community by Smithbilt Homes, located in Corryton, TN. Visit the Honey Oaks community page for full neighborhood insights, including nearby schools, shopping, walk & bike-scores, commuting, air quality & natural hazards.

More floor plans in Honey Oaks

Considering this plan?
Our expert will guide your tour, in-person or virtual
Need more information?
Text or call (888) 488-9243
Financials
Let us help you find your dream home
How many bedrooms are you looking for?
























