



Book your tour. Save an average of $18,473. We'll handle the rest.
- Confirmed tours
- Get matched & compare top deals
- Expert help, no pressure
- No added fees
Estimated value based on Jome data, T&C apply
- 3 bd
- 2.5 ba
- 1,579 sqft
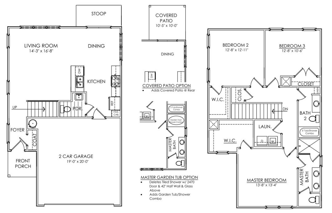
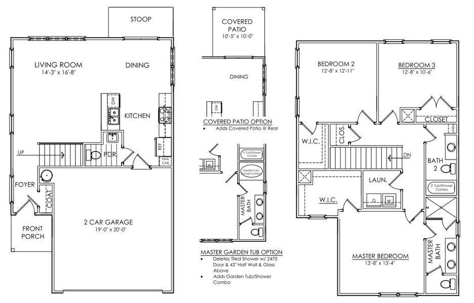
Lakewood plan in Evergreen Hills by Haven Builders
Visit the community to experience this floor plan
Why tour with Jome?
- No pressure toursTour at your own pace with no sales pressure
- Expert guidanceGet insights from our home buying experts
- Exclusive accessSee homes and deals not available elsewhere
Jome is featured in
Plan description
May also be listed on the Haven Builders website
Information last verified by Jome: Wednesday at 3:58 PM (January 14, 2026)
Plan details
- Name:
- Lakewood
- Property status:
- Floor plan
- Size:
- 1,579 sqft
- Stories:
- 2
- Beds:
- 3
- Baths:
- 2.5
- Garage spaces:
- 2
Plan features & finishes
- Garage/Parking:
- GarageAttached Garage
- Interior Features:
- Walk-In ClosetFoyerPantryStorage
- Laundry facilities:
- Utility/Laundry Room
- Property amenities:
- Porch
- Rooms:
- KitchenPowder RoomDining RoomFamily RoomOpen Concept FloorplanPrimary Bedroom Upstairs
- Upgrade Options:
- Covered PatioGarden Tub

Get a consultation with our New Homes Expert
- See how your home builds wealth
- Plan your home-buying roadmap
- Discover hidden gems
See the full plan layout
Download the floor plan PDF with room dimensions and home design details.

Instant download, no cost

Community details
Evergreen Hills
by Haven Builders, Nashville, TN
- 8 plans
- 1,477 - 2,311 sqft
View Evergreen Hills details
Want to know more about what's around here?
The Lakewood floor plan is part of Evergreen Hills, a new home community by Haven Builders, located in Nashville, TN. Visit the Evergreen Hills community page for full neighborhood insights, including nearby schools, shopping, walk & bike-scores, commuting, air quality & natural hazards.

More floor plans in Evergreen Hills

Considering this plan?
Our expert will guide your tour, in-person or virtual
Need more information?
Text or call (888) 486-2818
Financials
Let us help you find your dream home
How many bedrooms are you looking for?
Similar homes nearby
Recently added communities in this area
Nearby communities in Nashville
New homes in nearby cities
More New Homes in Nashville, TN
- Jome
- New homes search
- Tennessee
- Nashville-Memphis Area
- Davidson County
- Nashville
- Evergreen Hills
- 8686 Lawson Dr, Nashville, TN 37013

































