









Book your tour. Save an average of $18,473. We'll handle the rest.
- Confirmed tours
- Get matched & compare top deals
- Expert help, no pressure
- No added fees
Estimated value based on Jome data, T&C apply
- 2 bd
- 2 ba
- 2,153 sqft
Torino plan in The Grove At Haven Hill by Cook Bros. Homes
Visit the community to experience this floor plan
Why tour with Jome?
- No pressure toursTour at your own pace with no sales pressure
- Expert guidanceGet insights from our home buying experts
- Exclusive accessSee homes and deals not available elsewhere
Jome is featured in
Plan description
May also be listed on the Cook Bros. Homes website
Information last verified by Jome: Thursday at 8:42 AM (November 27, 2025)
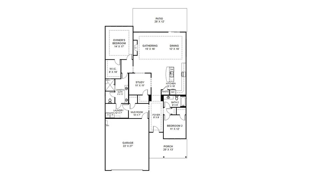
Plan details
- Name:
- Torino
- Property status:
- Floor plan
- Size:
- 2,153 sqft
- Stories:
- 1
- Beds:
- 2
- Baths:
- 2
- Garage spaces:
- 2
Plan features & finishes
- Garage/Parking:
- GarageAttached Garage
- Interior Features:
- Walk-In ClosetFoyerPantry
- Kitchen:
- Kitchen Island
- Laundry facilities:
- Utility/Laundry Room
- Property amenities:
- PatioPorch
- Rooms:
- Primary Bedroom On MainKitchenOffice/StudyMudroomDining RoomFamily RoomOpen Concept FloorplanPrimary Bedroom Downstairs
- Upgrade Options:
- Extra Floor OptionBonus RoomGourmet KitchenLaundry SinkAlternate KitchenExtra BathroomSitting RoomCovered PorchExtra Bedroom

Get a consultation with our New Homes Expert
- See how your home builds wealth
- Plan your home-buying roadmap
- Discover hidden gems
See the full plan layout
Download the floor plan PDF with room dimensions and home design details.

Instant download, no cost

Community details
The Grove At Haven Hill
by Cook Bros. Homes, Lenoir City, TN
- 8 plans
- 1,620 - 2,252 sqft
View The Grove At Haven Hill details
Want to know more about what's around here?
The Torino floor plan is part of The Grove At Haven Hill, a new home community by Cook Bros. Homes, located in Lenoir City, TN. Visit the The Grove At Haven Hill community page for full neighborhood insights, including nearby schools, shopping, walk & bike-scores, commuting, air quality & natural hazards.

More floor plans in The Grove At Haven Hill

Considering this plan?
Our expert will guide your tour, in-person or virtual
Need more information?
Text or call (888) 486-2818
Financials
Estimated monthly payment
Let us help you find your dream home
How many bedrooms are you looking for?
Similar homes nearby
Recently added communities in this area
Nearby communities in Lenoir City
New homes in nearby cities
More New Homes in Lenoir City, TN
- Jome
- New homes search
- Tennessee
- Chattanooga-Knoxville Area
- Loudon County
- Lenoir City
- The Grove At Haven Hill
- 185 Bittersweet Ln, Lenoir City, TN 37771






















