














Book your tour. Save an average of $18,473. We'll handle the rest.
We collect exclusive builder offers, book your tours, and support you from start to housewarming.
- Confirmed tours
- Get matched & compare top deals
- Expert help, no pressure
- No added fees
Estimated value based on Jome data, T&C apply





- 3 bd
- 2 ba
- 2,106 sqft
Laurel II plan in Enclave At Harvey by Cook Bros. Homes
Visit the community to experience this floor plan
Why tour with Jome?
- No pressure toursTour at your own pace with no sales pressure
- Expert guidanceGet insights from our home buying experts
- Exclusive accessSee homes and deals not available elsewhere
Jome is featured in
Plan description
May also be listed on the Cook Bros. Homes website
Information last verified by Jome: Thursday at 7:42 AM (November 27, 2025)
Plan details
- Name:
- Laurel II
- Property type:
- Floor plan
- Community:
- Enclave At Harvey
- Builder:
- Cook Bros. Homes
- Size:
- 2,106 sqft
- Stories:
- 1
- Beds:
- 3
- Baths:
- 2
- Garage spaces:
- 2
Plan features & finishes
- Garage/Parking:
- GarageAttached Garage
- Interior Features:
- Walk-In ClosetFoyerPantry
- Kitchen:
- Kitchen Island
- Laundry facilities:
- Utility/Laundry Room
- Property amenities:
- FireplacePorch
- Rooms:
- Primary Bedroom On MainKitchenMudroomDining RoomFamily RoomOpen Concept FloorplanPrimary Bedroom Downstairs
- Upgrade Options:
- DeckBasementExtra Floor OptionTray CeilingExtended GarageGourmet KitchenLaundry SinkAlternate KitchenGarage BayExtra BathroomVaulted CeilingDouble DoorsExtra BedroomFireplace

Get a consultation with our New Homes Expert
- See how your home builds wealth
- Plan your home-buying roadmap
- Discover hidden gems
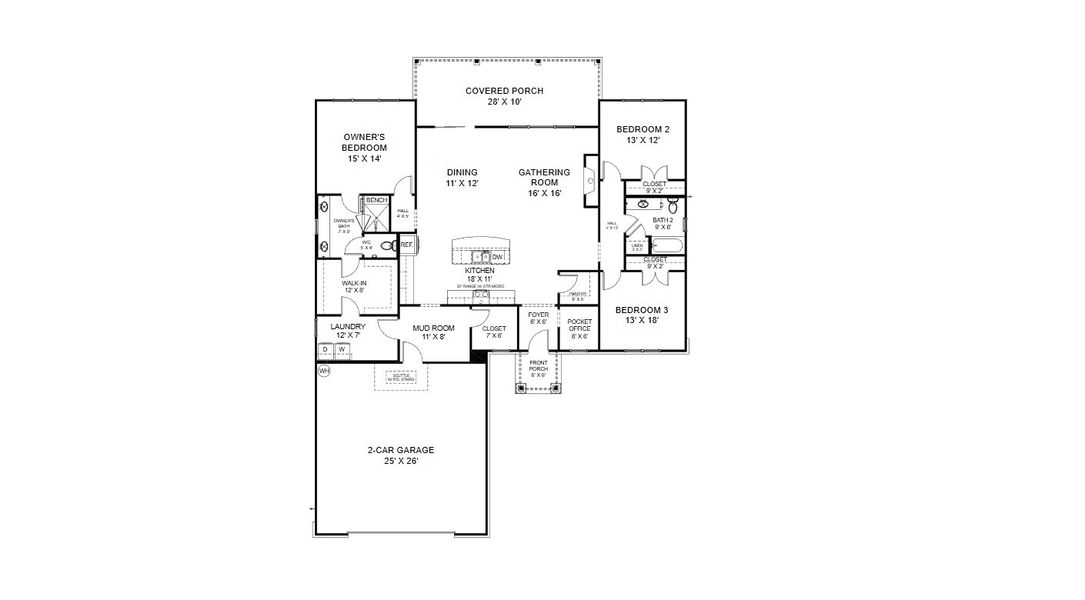
See the full plan layout
Download the floor plan PDF with room dimensions and home design details.

Instant download, no cost

Community details
Enclave At Harvey
by Cook Bros. Homes, Knoxville, TN
- 6 plans
- 1,620 - 2,323 sqft
View Enclave At Harvey details
Want to know more about what's around here?
The Laurel II floor plan is part of Enclave At Harvey, a new home community by Cook Bros. Homes, located in Louisville, TN. Visit the Enclave At Harvey community page for full neighborhood insights, including nearby schools, shopping, walk & bike-scores, commuting, air quality & natural hazards.

More floor plans in Enclave At Harvey

Considering this plan?
Our expert will guide your tour, in-person or virtual
Need more information?
Text or call (888) 488-9243
Estimated monthly payment
Let us help you find your dream home
How many bedrooms are you looking for?
Recently added communities in this area
Nearby communities in Louisville
New homes in nearby cities
More New Homes in Louisville, TN
- Jome
- New homes search
- Tennessee
- Chattanooga-Knoxville Area
- Blount County
- Louisville
- Enclave At Harvey
- 3571 Louisville Rd, Louisville, TN 37777




















