




Book your tour. Save an average of $18,473. We'll handle the rest.
- Confirmed tours
- Get matched & compare top deals
- Expert help, no pressure
- No added fees
Estimated value based on Jome data, T&C apply
- 3 bd
- 2.5 ba
- 3,438 sqft
Harrington plan in Copperstone At Choto by Sentinel Builders, Inc.
Visit the community to experience this floor plan
Why tour with Jome?
- No pressure toursTour at your own pace with no sales pressure
- Expert guidanceGet insights from our home buying experts
- Exclusive accessSee homes and deals not available elsewhere
Jome is featured in
Plan description
May also be listed on the Sentinel Builders, Inc. website
Information last verified by Jome: Wednesday at 5:36 PM (November 26, 2025)
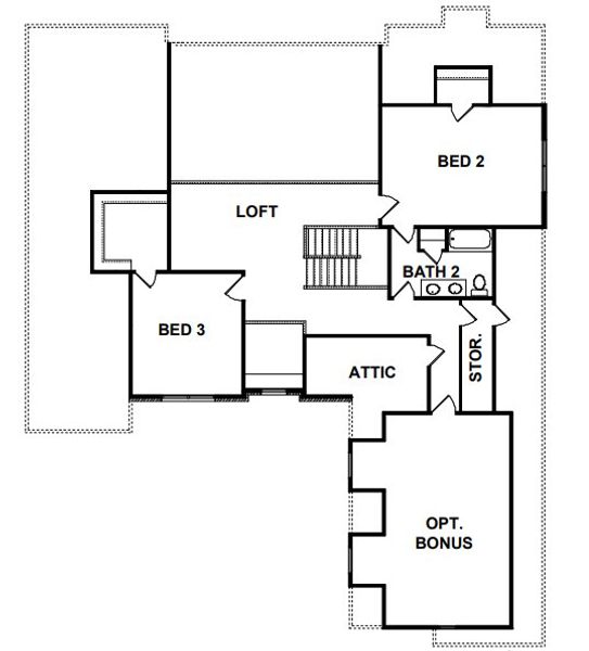
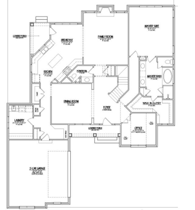
Plan details
- Name:
- Harrington
- Property status:
- Floor plan
- Size:
- 3,438 sqft
- Stories:
- 2
- Beds:
- 3
- Baths:
- 2.5
- Garage spaces:
- 2
Plan features & finishes
- Garage/Parking:
- GarageAttached Garage
- Interior Features:
- Walk-In ClosetFoyerPantryStorageLoft
- Laundry facilities:
- Utility/Laundry Room
- Property amenities:
- FireplacePorch
- Rooms:
- AtticPrimary Bedroom On MainKitchenPowder RoomOffice/StudyDining RoomFamily RoomOpen Concept FloorplanPrimary Bedroom Downstairs
- Upgrade Options:
- Bonus Room

Get a consultation with our New Homes Expert
- See how your home builds wealth
- Plan your home-buying roadmap
- Discover hidden gems
See the full plan layout
Download the floor plan PDF with room dimensions and home design details.

Instant download, no cost

Community details
Copperstone At Choto
by Sentinel Builders, Inc., Knoxville, TN
- 12 plans
- 2,395 - 3,650 sqft
View Copperstone At Choto details
Want to know more about what's around here?
The Harrington floor plan is part of Copperstone At Choto, a new home community by Sentinel Builders, Inc., located in Knoxville, TN. Visit the Copperstone At Choto community page for full neighborhood insights, including nearby schools, shopping, walk & bike-scores, commuting, air quality & natural hazards.

More floor plans in Copperstone At Choto

Considering this plan?
Our expert will guide your tour, in-person or virtual
Need more information?
Text or call (888) 486-2818
Let us help you find your dream home
How many bedrooms are you looking for?


























