




Book your tour. Save an average of $18,473. We'll handle the rest.
We collect exclusive builder offers, book your tours, and support you from start to housewarming.
- Confirmed tours
- Get matched & compare top deals
- Expert help, no pressure
- No added fees
Estimated value based on Jome data, T&C apply
- 3 bd
- 2.5 ba
- 2,557 sqft
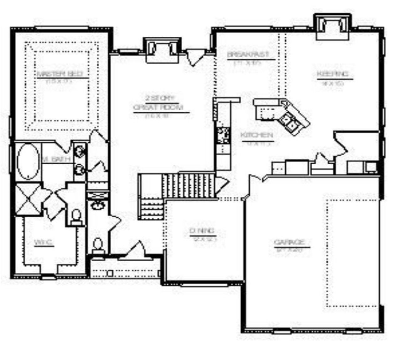
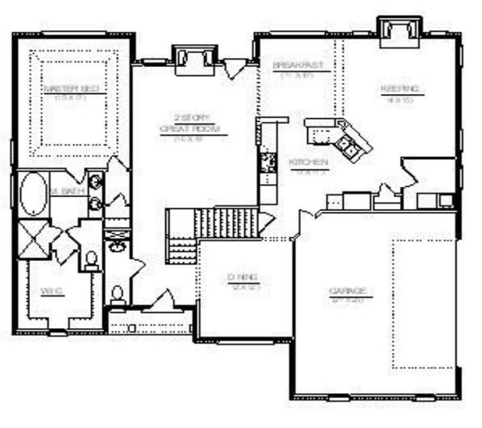
The Miller plan in Hannah’s Grove by Sentinel Builders, Inc.
Visit the community to experience this floor plan
Why tour with Jome?
- No pressure toursTour at your own pace with no sales pressure
- Expert guidanceGet insights from our home buying experts
- Exclusive accessSee homes and deals not available elsewhere
Jome is featured in
Plan description
May also be listed on the Sentinel Builders, Inc. website
Information last verified by Jome: Wednesday at 4:47 PM (November 26, 2025)
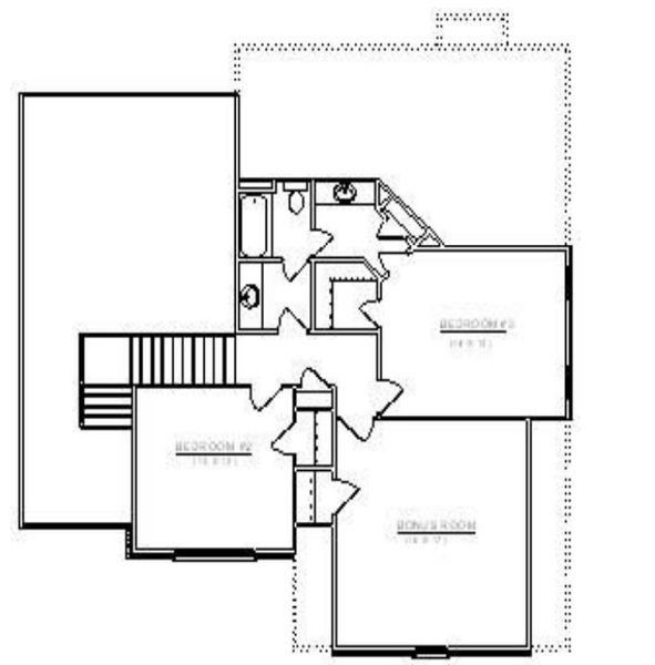
Plan details
- Name:
- The Miller
- Property type:
- Floor plan
- Community:
- Hannah’s Grove
- Builder:
- Sentinel Builders, Inc.
- Size:
- 2,557 sqft
- Stories:
- 2
- Beds:
- 3
- Baths:
- 2.5
- Garage spaces:
- 2
Plan features & finishes
- Garage/Parking:
- GarageAttached Garage
- Interior Features:
- Walk-In ClosetFoyerPantry
- Laundry facilities:
- Utility/Laundry Room
- Property amenities:
- Porch
- Rooms:
- Bonus RoomKitchenTwo-Story Great RoomDining RoomFamily RoomBreakfast AreaOpen Concept Floorplan

Get a consultation with our New Homes Expert
- See how your home builds wealth
- Plan your home-buying roadmap
- Discover hidden gems
See the full plan layout
Download the floor plan PDF with room dimensions and home design details.

Instant download, no cost

Community details
Hannah’s Grove
by Sentinel Builders, Inc., Halls, TN
- 6 plans
- 2,126 - 2,653 sqft
View Hannah’s Grove details
Want to know more about what's around here?
The The Miller floor plan is part of Hannah’s Grove, a new home community by Sentinel Builders, Inc., located in Halls, TN. Visit the Hannah’s Grove community page for full neighborhood insights, including nearby schools, shopping, walk & bike-scores, commuting, air quality & natural hazards.

More floor plans in Hannah’s Grove

Considering this plan?
Our expert will guide your tour, in-person or virtual
Need more information?
Text or call (888) 488-9243
Financials
Let us help you find your dream home
How many bedrooms are you looking for?



























