



Book your tour. Save an average of $18,473. We'll handle the rest.
- Confirmed tours
- Get matched & compare top deals
- Expert help, no pressure
- No added fees
Estimated value based on Jome data, T&C apply
- 3 bd
- 2.5 ba
- 2,298 sqft
The Winston plan in Farm At Riverbend by Smithbilt Homes
Visit the community to experience this floor plan
Why tour with Jome?
- No pressure toursTour at your own pace with no sales pressure
- Expert guidanceGet insights from our home buying experts
- Exclusive accessSee homes and deals not available elsewhere
Jome is featured in
Plan description
May also be listed on the Smithbilt Homes website
Information last verified by Jome: Today at 3:21 AM (December 5, 2025)
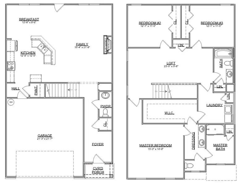
Plan highlights
Plan details
- Name:
- The Winston
- Property status:
- Floor plan
- Size:
- 2,298 sqft
- Stories:
- 2
- Beds:
- 3
- Baths:
- 2.5
- Garage spaces:
- 2
Plan features & finishes
- Garage/Parking:
- GarageAttached Garage
- Interior Features:
- Walk-In ClosetFoyerPantryLoft
- Laundry facilities:
- Utility/Laundry Room
- Property amenities:
- FireplacePorch
- Rooms:
- KitchenPowder RoomFamily RoomBreakfast AreaOpen Concept FloorplanPrimary Bedroom Upstairs
See the full plan layout
Download the floor plan PDF with room dimensions and home design details.

Instant download, no cost

Community details
Farm At Riverbend
by Smithbilt Homes, Pigeon Forge, TN
- 30 plans
- 1,772 - 2,711 sqft
View Farm At Riverbend details
Want to know more about what's around here?
The The Winston floor plan is part of Farm At Riverbend, a new home community by Smithbilt Homes, located in Pigeon Forge, TN. Visit the Farm At Riverbend community page for full neighborhood insights, including nearby schools, shopping, walk & bike-scores, commuting, air quality & natural hazards.

More floor plans in Farm At Riverbend

Considering this plan?
Our expert will guide your tour, in-person or virtual
Need more information?
Text or call (888) 486-2818
Similar homes nearby
Recently added communities in this area
Nearby communities in Pigeon Forge
New homes in nearby cities
More New Homes in Pigeon Forge, TN
- Home
- New homes
- Tennessee
- Chattanooga-Knoxville Area
- Sevier County
- Pigeon Forge
- Farm At Riverbend
- 2059 Farm Blvd, Pigeon Forge, TN 37876



























