














Book your tour. Save an average of $18,473. We'll handle the rest.
We collect exclusive builder offers, book your tours, and support you from start to housewarming.
- Confirmed tours
- Get matched & compare top deals
- Expert help, no pressure
- No added fees
Estimated value based on Jome data, T&C apply













- 3 bd
- 2 ba
- 1,158 sqft
Dogwood B 1-Car plan in Select Homesites Ridgeland by McGuinn Homes
Visit the community to experience this floor plan
Why tour with Jome?
- No pressure toursTour at your own pace with no sales pressure
- Expert guidanceGet insights from our home buying experts
- Exclusive accessSee homes and deals not available elsewhere
Jome is featured in
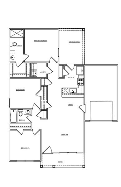
Plan description
The Dogwood B 1-Car is a smart, comfortable floor plan that makes the most of every square foot. It’s easy to live in and designed with all the essentials in the right places.
This floor plan offers 3 bedrooms, 2 bathrooms, and 1,158 square feet of beautifully designed space, along with a one-car garage. When you step inside from the front porch, you’re welcomed into the main living area where the great room flows naturally into the dining space and kitchen. The kitchen features a functional layout with plenty of counter space and a convenient connection to the dining area—making everyday meals feel simple and effortless.
The primary bedroom is tucked away at the rear of the home for privacy and includes its own ensuite bathroom and spacious walk-in closet. Two additional bedrooms are located nearby and share a full bathroom, offering flexibility for guests, kids, or a home office. A centrally located laundry room adds convenience and keeps everything close and efficient. At the back of the home, a covered porch provides the perfect spot to enjoy fresh air, grill out, or relax at the end of the day.
With its practical layout and inviting design, the Dogwood is a great fit for anyone looking for a home that feels comfortable, functional, and just right!
May also be listed on the McGuinn Homes website
Information last verified by Jome: Yesterday at 6:17 AM (March 11, 2026)
Book your tour. Save an average of $18,473. We'll handle the rest.
We collect exclusive builder offers, book your tours, and support you from start to housewarming.
- Confirmed tours
- Get matched & compare top deals
- Expert help, no pressure
- No added fees
Estimated value based on Jome data, T&C apply
Plan details
- Name:
- Dogwood B 1-Car
- Property type:
- Floor plan
- Community:
- Select Homesites Ridgeland
- Builder:
- McGuinn Homes
- Size:
- 1,158 sqft
- Stories:
- 1
- Beds:
- 3
- Baths:
- 2
- Garage spaces:
- 1
Plan features & finishes
- Garage/Parking:
- Garage
- Rooms:
- Primary Bedroom On MainPrimary Bedroom Downstairs

Get a consultation with our New Homes Expert
- See how your home builds wealth
- Plan your home-buying roadmap
- Discover hidden gems

Community details
Select Homesites Ridgeland
by McGuinn Homes, Ridgeland, SC
- 1 home
- 1 plan
- 1,158 - 1,158 sqft
View Select Homesites Ridgeland details
Want to know more about what's around here?
The Dogwood B 1-Car floor plan is part of Select Homesites Ridgeland, a new home community by McGuinn Homes, located in Ridgeland, SC. Visit the Select Homesites Ridgeland community page for full neighborhood insights, including nearby schools, shopping, walk & bike-scores, commuting, air quality & natural hazards.

Available homes in Select Homesites Ridgeland
- Home at address 256 Weathersbee St, Unit (29), Ridgeland, SC 29936

Dogwood B 1-Car
$269,900
- 3 bd
- 2 ba
- 1,158 sqft
256 Weathersbee St, Unit (29), Ridgeland, SC 29936

Considering this plan?
Our expert will guide your tour, in-person or virtual
Need more information?
Text or call (888) 488-9243
Financials
Estimated monthly payment
Let us help you find your dream home
How many bedrooms are you looking for?















