



Book your tour. Save an average of $18,473. We'll handle the rest.
- Confirmed tours
- Get matched & compare top deals
- Expert help, no pressure
- No added fees
Estimated value based on Jome data, T&C apply
- 4 bd
- 2.5 ba
- 1,885 sqft
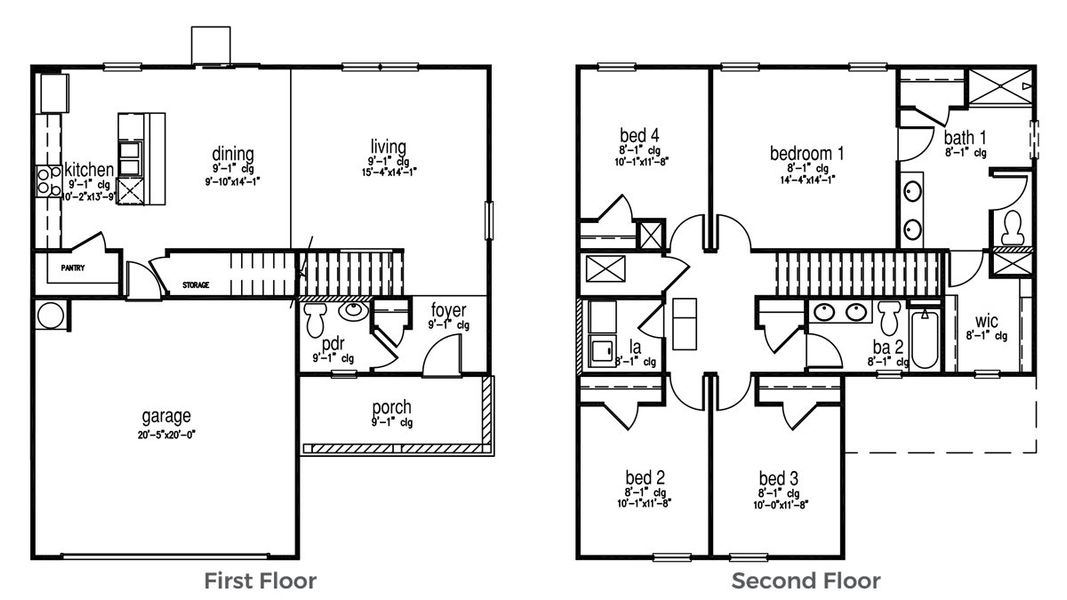
Arden plan in Sandridge Park by D.R. Horton
Visit the community to experience this floor plan
Why tour with Jome?
- No pressure toursTour at your own pace with no sales pressure
- Expert guidanceGet insights from our home buying experts
- Exclusive accessSee homes and deals not available elsewhere
Jome is featured in
Plan description
The Arden plan incorporates smart design with thoughtful details that you will appreciate. The kitchen features an extra large pantry, a lot of cabinet space, and an efficient layout that is open to the dining and family room. The primary bedroom is a perfect retreat with a walk-in closet and generous owner's bathroom featuring a double vanity, large shower, and a separate linen closet. Plus, the laundry room is on the second floor with all of the bedrooms!
May also be listed on the D.R. Horton website
Information last verified by Jome: Today at 1:45 AM (January 21, 2026)
Book your tour. Save an average of $18,473. We'll handle the rest.
We collect exclusive builder offers, book your tours, and support you from start to housewarming.
- Confirmed tours
- Get matched & compare top deals
- Expert help, no pressure
- No added fees
Estimated value based on Jome data, T&C apply
Plan details
- Name:
- Arden
- Property status:
- Floor plan
- Size:
- 1,885 sqft
- Stories:
- 2
- Beds:
- 4
- Baths:
- 2.5
- Garage spaces:
- 2
Plan features & finishes
- Garage/Parking:
- Garage

Get a consultation with our New Homes Expert
- See how your home builds wealth
- Plan your home-buying roadmap
- Discover hidden gems

Community details
Sandridge Park
by D.R. Horton, Little River, SC
- 14 homes
- 8 plans
- 1,475 - 2,713 sqft
View Sandridge Park details
Want to know more about what's around here?
The Arden floor plan is part of Sandridge Park, a new home community by D.R. Horton, located in Little River, SC. Visit the Sandridge Park community page for full neighborhood insights, including nearby schools, shopping, walk & bike-scores, commuting, air quality & natural hazards.

Available homes in Sandridge Park
- Home at address 305 Cheerful Wy, Little River, SC 29566

Cali
$321,940
- 4 bd
- 2 ba
- 1,774 sqft
305 Cheerful Wy, Little River, SC 29566
- Home at address 514 Blissful Dr, Little River, SC 29566

Cali
$322,640
- 4 bd
- 2 ba
- 1,774 sqft
514 Blissful Dr, Little River, SC 29566
- Home at address 488 Blissful Dr, Little River, SC 29566

Cali
$322,640
- 4 bd
- 2 ba
- 1,774 sqft
488 Blissful Dr, Little River, SC 29566
- Home at address 500 Blissful Dr, Little River, SC 29566

Cali
$328,640
- 4 bd
- 2 ba
- 1,774 sqft
500 Blissful Dr, Little River, SC 29566
- Home at address 743 Grateful Dr, Little River, SC 29566

Arden
$352,415
- 4 bd
- 2.5 ba
- 1,885 sqft
743 Grateful Dr, Little River, SC 29566
- Home at address 203 Calm Dr, Little River, SC 29566

Robie
$366,755
- 5 bd
- 3 ba
- 2,361 sqft
203 Calm Dr, Little River, SC 29566
More floor plans in Sandridge Park

Considering this plan?
Our expert will guide your tour, in-person or virtual
Need more information?
Text or call (888) 486-2818
Financials
Estimated monthly payment
Let us help you find your dream home
How many bedrooms are you looking for?
Similar homes nearby
Recently added communities in this area
Nearby communities in Little River
New homes in nearby cities
More New Homes in Little River, SC
- Jome
- New homes search
- South Carolina
- Horry County
- Little River
- Sandridge Park
- 154 Calm Dr, Little River, SC 29566





























