





Book your tour. Save an average of $18,473. We'll handle the rest.
- Confirmed tours
- Get matched & compare top deals
- Expert help, no pressure
- No added fees
Estimated value based on Jome data, T&C apply
- 3 bd
- 2.5 ba
- 1,973 sqft
Wake plan in Midtown Nexton/Piedmont by New Leaf Builders
Visit the community to experience this floor plan
Why tour with Jome?
- No pressure toursTour at your own pace with no sales pressure
- Expert guidanceGet insights from our home buying experts
- Exclusive accessSee homes and deals not available elsewhere
Jome is featured in
Plan description
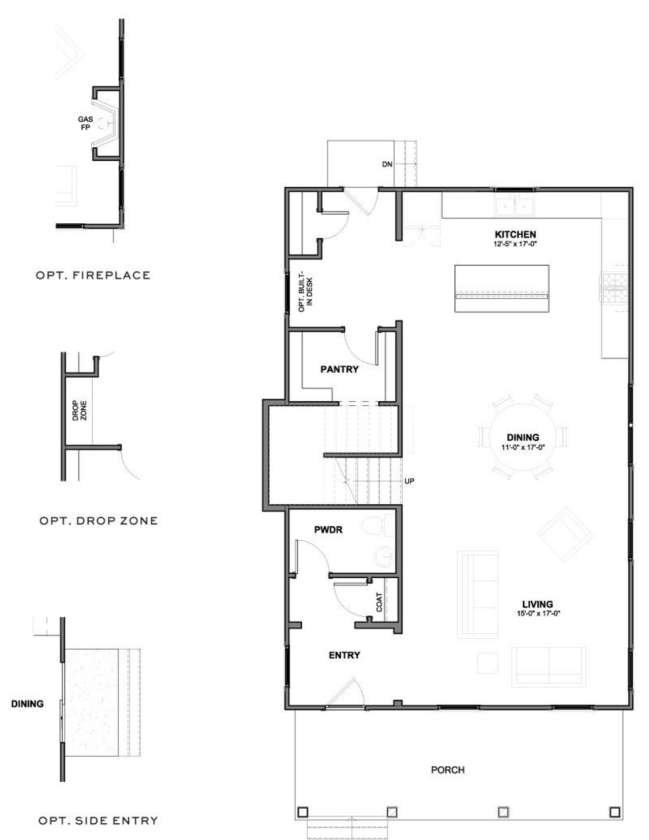
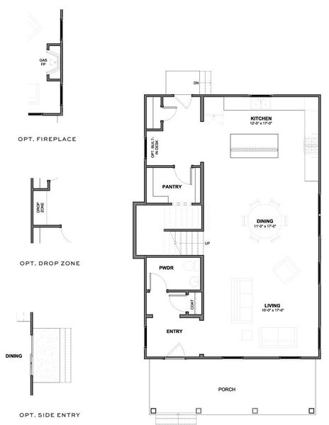
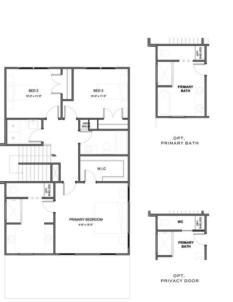
The Wake floorplan by New Leaf Builders lives large at 1,973 sq feet with 3 bedrooms, 2.5 baths and an open floor plan. This home is the definition of southern living. Taking design inspiration from a classic farmhouse, this home features a spacious front porch and an optional back porch. The main floor boasts a large open-concept living room and kitchen with space for a dining table to connect the two spaces. Imagine yourself curled up by the fire as the smell of a home cooked meal fills the room — this house is large on living. The second floor features 2 bedrooms and a primary suite with a spacious primary bathroom with a walk-in closet. This is a home that you can grow old with.
May also be listed on the New Leaf Builders website
Information last verified by Jome: Today at 10:32 AM (December 26, 2025)
Plan highlights
Plan details
- Name:
- Wake
- Property status:
- Floor plan
- Size:
- 1,973 sqft
- Stories:
- 2
- Beds:
- 3
- Baths:
- 2
- Half baths:
- 1
- Garage spaces:
- 2
Plan features & finishes
- Garage/Parking:
- Garage
- Interior Features:
- Walk-In ClosetPantry
- Laundry facilities:
- Utility/Laundry Room
- Property amenities:
- Porch
- Rooms:
- KitchenPowder RoomDining RoomLiving RoomPrimary Bedroom Upstairs
- Upgrade Options:
- Drop ZoneFireplace
See the full plan layout
Download the floor plan PDF with room dimensions and home design details.

Instant download, no cost

Community details
Midtown Nexton/Piedmont
by New Leaf Builders, Summerville, SC
- 1 home
- 4 plans
- 1,606 - 2,102 sqft
View Midtown Nexton/Piedmont details
Want to know more about what's around here?
The Wake floor plan is part of Midtown Nexton/Piedmont, a new home community by New Leaf Builders, located in Summerville, SC. Visit the Midtown Nexton/Piedmont community page for full neighborhood insights, including nearby schools, shopping, walk & bike-scores, commuting, air quality & natural hazards.

Available homes in Midtown Nexton/Piedmont
More floor plans in Midtown Nexton/Piedmont

Considering this plan?
Our expert will guide your tour, in-person or virtual
Need more information?
Text or call (888) 486-2818
Financials
Estimated monthly payment
Similar homes nearby
Recently added communities in this area
Nearby communities in Summerville
New homes in nearby cities
More New Homes in Summerville, SC
- Jome
- New homes search
- South Carolina
- Charleston Metropolitan Area
- Berkeley County
- Summerville
- Midtown Nexton/Piedmont
- 454 Ripple Park Dr, Summerville, SC 29486






























