




Book your tour. Save an average of $18,473. We'll handle the rest.
- Confirmed tours
- Get matched & compare top deals
- Expert help, no pressure
- No added fees
Estimated value based on Jome data, T&C apply
- 3 bd
- 2.5 ba
- 1,606 sqft
Lincoln plan in Midtown Nexton/Piedmont by New Leaf Builders
Visit the community to experience this floor plan
Why tour with Jome?
- No pressure toursTour at your own pace with no sales pressure
- Expert guidanceGet insights from our home buying experts
- Exclusive accessSee homes and deals not available elsewhere
Jome is featured in
Plan description
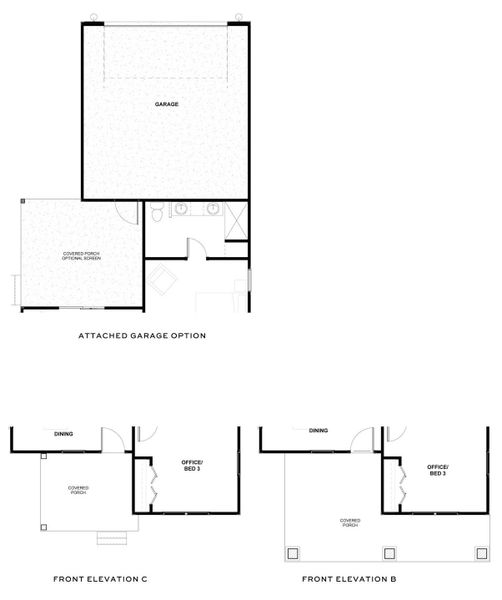
The single-story Lincoln entices homeowners with generously proportioned spaces in 1,606 thoughtfully crafted square feet. This 3 bedroom, 2 full bath design surprises with a spacious open floorplan. Coming home to the Lincoln is a joy. A generously proportioned open kitchen encourages engagement with friends and family from both the living and dining rooms and guests will appreciate the graciousness of the large guest bedrooms and a full guest bathroom. As the owner, you’ll relish the ample storage of a walk-in closet at the primary bedroom, situated at the rear of your home for the ultimate in privacy and convenience.
May also be listed on the New Leaf Builders website
Information last verified by Jome: Today at 10:32 AM (December 26, 2025)
Plan highlights
Plan details
- Name:
- Lincoln
- Property status:
- Floor plan
- Size:
- 1,606 sqft
- Stories:
- 1
- Beds:
- 3
- Baths:
- 2
- Half baths:
- 1
Plan features & finishes
- Garage/Parking:
- Garage
- Interior Features:
- Walk-In Closet
- Laundry facilities:
- Utility/Laundry Room
- Property amenities:
- Covered Porch
- Rooms:
- Primary Bedroom On MainKitchenOffice/StudyDining RoomLiving RoomPrimary Bedroom Downstairs
- Upgrade Options:
- Drop ZoneScreened PorchFireplace

Get a consultation with our New Homes Expert
- See how your home builds wealth
- Plan your home-buying roadmap
- Discover hidden gems
See the full plan layout
Download the floor plan PDF with room dimensions and home design details.

Instant download, no cost

Community details
Midtown Nexton/Piedmont
by New Leaf Builders, Summerville, SC
- 1 home
- 4 plans
- 1,606 - 2,102 sqft
View Midtown Nexton/Piedmont details
Want to know more about what's around here?
The Lincoln floor plan is part of Midtown Nexton/Piedmont, a new home community by New Leaf Builders, located in Summerville, SC. Visit the Midtown Nexton/Piedmont community page for full neighborhood insights, including nearby schools, shopping, walk & bike-scores, commuting, air quality & natural hazards.

Available homes in Midtown Nexton/Piedmont
More floor plans in Midtown Nexton/Piedmont

Considering this plan?
Our expert will guide your tour, in-person or virtual
Need more information?
Text or call (888) 486-2818
Financials
Estimated monthly payment
Let us help you find your dream home
How many bedrooms are you looking for?
Similar homes nearby
Recently added communities in this area
Nearby communities in Summerville
New homes in nearby cities
More New Homes in Summerville, SC
- Jome
- New homes search
- South Carolina
- Charleston Metropolitan Area
- Berkeley County
- Summerville
- Midtown Nexton/Piedmont
- 454 Ripple Park Dr, Summerville, SC 29486






























