



Book your tour. Save an average of $18,473. We'll handle the rest.
We collect exclusive builder offers, book your tours, and support you from start to housewarming.
- Confirmed tours
- Get matched & compare top deals
- Expert help, no pressure
- No added fees
Estimated value based on Jome data, T&C apply
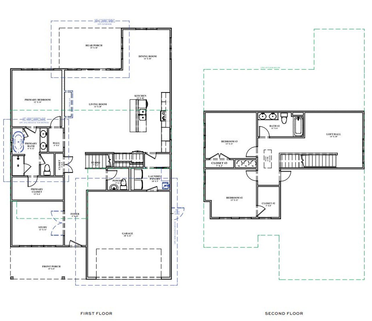
- 3 bd
- 2.5 ba
- 2,331 sqft
Berkeley plan in Vineyard Lakes by New Leaf Builders
Visit the community to experience this floor plan
Why tour with Jome?
- No pressure toursTour at your own pace with no sales pressure
- Expert guidanceGet insights from our home buying experts
- Exclusive accessSee homes and deals not available elsewhere
Jome is featured in
Plan description
May also be listed on the New Leaf Builders website
Information last verified by Jome: Yesterday at 12:11 PM (April 3, 2026)
Plan details
- Name:
- Berkeley
- Property type:
- Floor plan
- Community:
- Vineyard Lakes
- Builder:
- New Leaf Builders
- Size:
- 2,331 sqft
- Stories:
- 2
- Beds:
- 3
- Baths:
- 2
- Half baths:
- 1
- Garage spaces:
- 2
Plan features & finishes
- Garage/Parking:
- GarageAttached Garage
- Interior Features:
- Walk-In ClosetFoyerPantryLoft
- Laundry facilities:
- Utility/Laundry Room
- Property amenities:
- Porch
- Rooms:
- KitchenPowder RoomDining RoomLiving RoomPrimary Bedroom Downstairs
- Upgrade Options:
- Sun RoomScreened PorchCovered Porch

Get a consultation with our New Homes Expert
- See how your home builds wealth
- Plan your home-buying roadmap
- Discover hidden gems
See the full plan layout
Download the floor plan PDF with room dimensions and home design details.

Instant download, no cost

Community details
Vineyard Lakes
by New Leaf Builders, Johns Island, SC
- 1 home
- 5 plans
- 1,782 - 2,695 sqft
View Vineyard Lakes details
Want to know more about what's around here?
The Berkeley floor plan is part of Vineyard Lakes, a new home community by New Leaf Builders, located in Johns Island, SC. Visit the Vineyard Lakes community page for full neighborhood insights, including nearby schools, shopping, walk & bike-scores, commuting, air quality & natural hazards.

Available homes in Vineyard Lakes
- Home at address 2964 Lodge Berry Ln, Johns Island, SC 29455

Gates
$799,900
- 3 bd
- 3 ba
- 2,330 sqft
2964 Lodge Berry Ln, Johns Island, SC 29455
More floor plans in Vineyard Lakes

Considering this plan?
Our expert will guide your tour, in-person or virtual
Need more information?
Text or call (888) 545-5198
Financials
Estimated monthly payment
Let us help you find your dream home
How many bedrooms are you looking for?
Similar homes nearby
Recently added communities in this area
Nearby communities in Johns Island
New homes in nearby cities
More New Homes in Johns Island, SC
- Jome
- New homes search
- South Carolina
- Charleston Metropolitan Area
- Charleston County
- Johns Island
- Vineyard Lakes
- 2900 Lodge Berry Ln, Johns Island, SC 29455































