













Book your tour. Save an average of $18,473. We'll handle the rest.
- Confirmed tours
- Get matched & compare top deals
- Expert help, no pressure
- No added fees
Estimated value based on Jome data, T&C apply
- 4 bd
- 2.5 ba
- 2,313 sqft
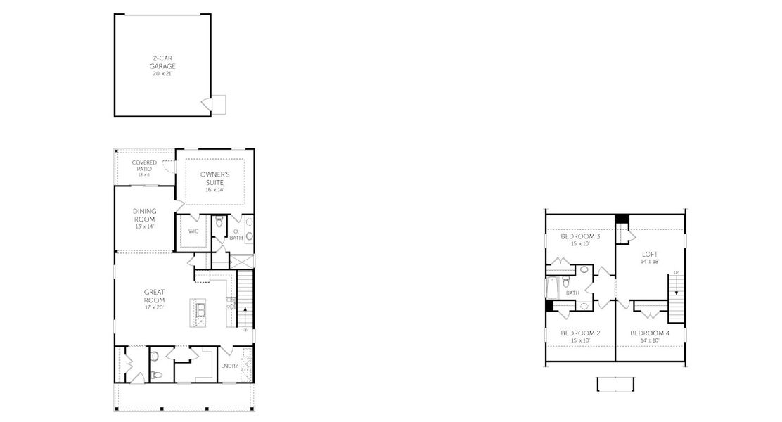
Jasmine - Single Family Homes plan in River Oaks by Dream Finders Homes
Visit the community to experience this floor plan
Why tour with Jome?
- No pressure toursTour at your own pace with no sales pressure
- Expert guidanceGet insights from our home buying experts
- Exclusive accessSee homes and deals not available elsewhere
Jome is featured in
Plan description
May also be listed on the Dream Finders Homes website
Information last verified by Jome: Yesterday at 5:51 AM (February 1, 2026)
Plan details
- Name:
- Jasmine - Single Family Homes
- Property status:
- Floor plan
- Size:
- 2,313 sqft
- Stories:
- 2
- Beds:
- 4
- Baths:
- 2
- Half baths:
- 1
- Garage spaces:
- 2
Plan features & finishes
- Garage/Parking:
- Garage
- Interior Features:
- Walk-In ClosetPantryLoft
- Kitchen:
- Kitchen Island
- Laundry facilities:
- Utility/Laundry Room
- Property amenities:
- Patio
- Rooms:
- Primary Bedroom On MainKitchenDining RoomFamily RoomPrimary Bedroom Downstairs

Get a consultation with our New Homes Expert
- See how your home builds wealth
- Plan your home-buying roadmap
- Discover hidden gems
See the full plan layout
Download the floor plan PDF with room dimensions and home design details.

Instant download, no cost

Community details
River Oaks
by Dream Finders Homes, Okatie, SC
- 7 homes
- 5 plans
- 1,660 - 2,313 sqft
View River Oaks details
Want to know more about what's around here?
The Jasmine - Single Family Homes floor plan is part of River Oaks, a new home community by Dream Finders Homes, located in Okatie, SC. Visit the River Oaks community page for full neighborhood insights, including nearby schools, shopping, walk & bike-scores, commuting, air quality & natural hazards.

Available homes in River Oaks
- Home at address 190 Standing Oaks Dr, Okatie, SC 29909

Cypress
$364,990
- 4 bd
- 3 ba
- 1,703 sqft
190 Standing Oaks Dr, Okatie, SC 29909
- Home at address 195 Standing Oaks Dr, Okatie, SC 29909

Jasmine
$419,990
- 4 bd
- 2.5 ba
- 2,313 sqft
195 Standing Oaks Dr, Okatie, SC 29909
- Home at address 193 Standing Oaks Dr, Okatie, SC 29909

Ashwood
$445,000
- 4 bd
- 3.5 ba
- 1,965 sqft
193 Standing Oaks Dr, Okatie, SC 29909
- Home at address 9 Standing Oaks Ln, Okatie, SC 29909

Jasmine
$491,924
- 4 bd
- 2.5 ba
- 2,313 sqft
9 Standing Oaks Ln, Okatie, SC 29909
- Home at address 14 Standing Oaks Ln, Okatie, SC 29909

Jasmine
$509,184
- 4 bd
- 2.5 ba
- 2,313 sqft
14 Standing Oaks Ln, Okatie, SC 29909
More floor plans in River Oaks
- View details for Ashwood - Single Family Homes

Ashwood - Single Family Homes
$387,990+- 3 bd
- 2.5 ba
- 1,660 sqft
- View details for Cypress - Single Family Homes

Cypress - Single Family Homes
$392,990+- 3 bd
- 3 ba
- 1,702 sqft

Considering this plan?
Our expert will guide your tour, in-person or virtual
Need more information?
Text or call (888) 486-2818
Financials
Estimated monthly payment
Let us help you find your dream home
How many bedrooms are you looking for?
Similar homes nearby
Recently added communities in this area
Nearby communities in Okatie
New homes in nearby cities
More New Homes in Okatie, SC
- Jome
- New homes search
- South Carolina
- Beaufort County
- Okatie
- River Oaks
- 5 Whispering Oaks Cir, Okatie, SC 29909

























