















- 3 bd
- 3 ba
- 2,194 sqft
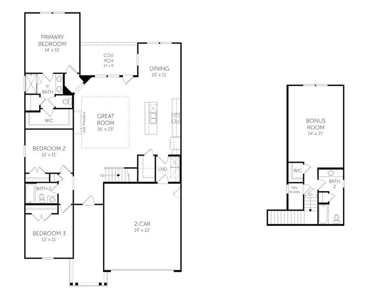
Camden w/ Bonus - Single Family Homes plan in The Settlement by Dream Finders Homes
New Homes for Sale Near 202 Encampment Blvd, Simpsonville, SC 29681
About this Plan
May also be listed on the Dream Finders Homes website
Information last verified by Jome: Tuesday at 5:11 AM (March 3, 2026)
Plan details
- Name:
- Camden w/ Bonus - Single Family Homes
- Property type:
- Sold
- Community:
- The Settlement
- Builder:
- Dream Finders Homes
- Collection:
- The Settlement 40'
- Size:
- 2,194 sqft
- Stories:
- 2
- Beds from:
- 3
- Beds to:
- 4
- Baths:
- 3
- Garage spaces:
- 2
Plan features & finishes
- Garage/Parking:
- GarageAttached Garage
- Interior Features:
- Walk-In Closet
- Laundry facilities:
- Utility/Laundry Room
- Property amenities:
- Covered Porch
- Rooms:
- Bonus RoomGreat RoomKitchenDining AreaPrimary Bedroom Downstairs
- Upgrade Options:
- Separate Shower and TubGourmet KitchenShowerExtended PorchFireplace
See the full plan layout
Download the floor plan PDF with room dimensions and home design details.

Instant download, no cost

Community details
The Settlement
by Dream Finders Homes, Simpsonville, SC
- 25 homes
- 4 plans
- 1,570 - 3,788 sqft
View The Settlement details
Want to know more about what's around here?
The Camden w/ Bonus - Single Family Homes floor plan is part of The Settlement, a new home community by Dream Finders Homes, located in Simpsonville, SC. Visit the The Settlement community page for full neighborhood insights, including nearby schools, shopping, walk & bike-scores, commuting, air quality & natural hazards.

Available homes in The Settlement
- Home at address 306 Gauley St, Simpsonville, SC 29681

$286,990
Move-in ready- 3 bd
- 2.5 ba
- 1,676 sqft
306 Gauley St, Simpsonville, SC 29681
- Home at address 304 Gauley St, Simpsonville, SC 29681

$293,063
Move-in ready- 3 bd
- 2.5 ba
- 1,676 sqft
304 Gauley St, Simpsonville, SC 29681
- Home at address 109 Twomey Cir, Simpsonville, SC 29681

$293,833
Move-in ready- 3 bd
- 2.5 ba
- 1,676 sqft
109 Twomey Cir, Simpsonville, SC 29681
- Home at address 101 Twomey Cir, Simpsonville, SC 29681

$316,744
Move-in ready- 3 bd
- 2.5 ba
- 1,800 sqft
101 Twomey Cir, Simpsonville, SC 29681
- Home at address 302 Gauley St, Simpsonville, SC 29681

$318,563
Move-in ready- 3 bd
- 2.5 ba
- 1,800 sqft
302 Gauley St, Simpsonville, SC 29681
- Home at address 300 Gauley St, Simpsonville, SC 29681

$329,441
Move-in ready- 3 bd
- 2.5 ba
- 1,800 sqft
300 Gauley St, Simpsonville, SC 29681
More floor plans in The Settlement
- View details for Fisher - Townhomes

Fisher - Townhomes
The Settlement Townhomes
$269,990+- 3 bd
- 2.5 ba
- 1,570 sqft
- View details for Madison - Townhomes

Madison - Townhomes
The Settlement Townhomes
$285,990+- 3 bd
- 2.5 ba
- 1,693 sqft
Financials
Nearby communities in Simpsonville
Homes in Simpsonville by Dream Finders Homes
Recently added communities in this area
Other Builders in Simpsonville, SC
Nearby sold homes
New homes in nearby cities
More New Homes in Simpsonville, SC
- Jome
- New homes search
- South Carolina
- Greenville County
- Simpsonville
- The Settlement
- The Settlement 40'
- 202 Encampment Blvd, Simpsonville, SC 29681
























































