













Book your tour. Save an average of $18,473. We'll handle the rest.
We collect exclusive builder offers, book your tours, and support you from start to housewarming.
- Confirmed tours
- Get matched & compare top deals
- Expert help, no pressure
- No added fees
Estimated value based on Jome data, T&C apply











- 4 bd
- 2.5 ba
- 1,900 sqft
Move-In Ready Lily plan in Everly by Ryan Homes
Visit the community to experience this floor plan
Why tour with Jome?
- No pressure toursTour at your own pace with no sales pressure
- Expert guidanceGet insights from our home buying experts
- Exclusive accessSee homes and deals not available elsewhere
Jome is featured in
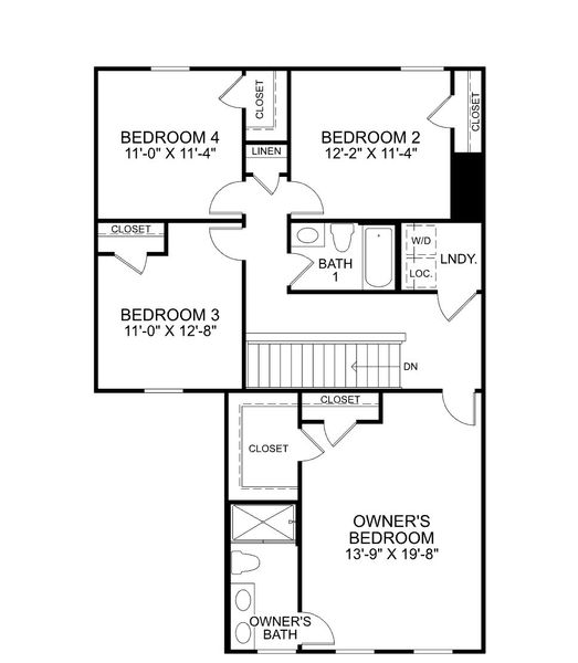
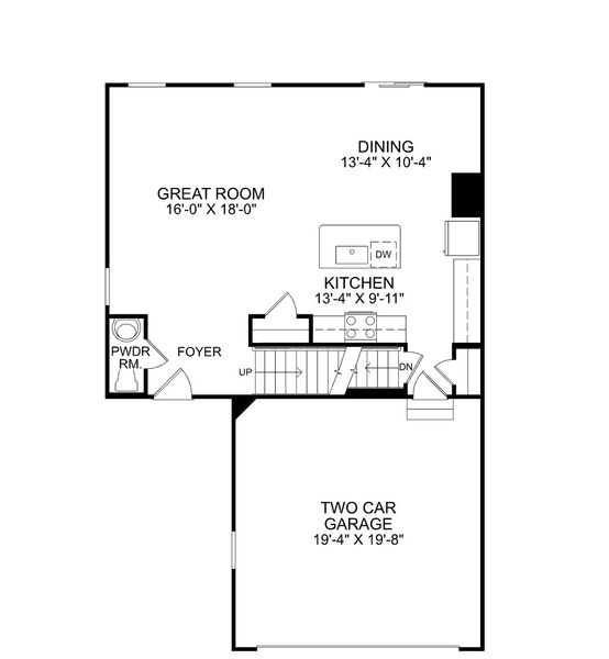
Plan description
May also be listed on the Ryan Homes website
Information last verified by Jome: Today at 1:33 AM (February 14, 2026)
Plan details
- Name:
- Move-In Ready Lily
- Property status:
- Floor plan
- Collection:
- Everly 2-Story
- Size:
- 1,900 sqft
- Stories:
- 2
- Beds:
- 4
- Baths:
- 2
- Half baths:
- 1
- Garage spaces:
- 2
Plan features & finishes
- Garage/Parking:
- GarageAttached Garage
- Interior Features:
- Walk-In ClosetFoyer
- Laundry facilities:
- Utility/Laundry Room
- Rooms:
- Great RoomKitchenPowder RoomDining RoomOpen Concept FloorplanPrimary Bedroom Upstairs
- Upgrade Options:
- Covered PatioSliding Glass Doors

Get a consultation with our New Homes Expert
- See how your home builds wealth
- Plan your home-buying roadmap
- Discover hidden gems
See the full plan layout
Download the floor plan PDF with room dimensions and home design details.

Instant download, no cost

Community details
Everly
by Ryan Homes, Spartanburg, SC
- 3 homes
- 16 plans
- 1,153 - 3,656 sqft
View Everly details
Want to know more about what's around here?
The Move-In Ready Lily floor plan is part of Everly, a new home community by Ryan Homes, located in Spartanburg, SC. Visit the Everly community page for full neighborhood insights, including nearby schools, shopping, walk & bike-scores, commuting, air quality & natural hazards.

Available homes in Everly
- Home at address 5613 Yellowheart Wy, Spartanburg, SC 29306

Torrey
Everly 2-Story
$279,999
- 4 bd
- 2.5 ba
- 1,946 sqft
5613 Yellowheart Wy, Spartanburg, SC 29306
- Home at address 5052 Burmese Trl, Spartanburg, SC 29306

Lily
Everly 2-Story
$279,999
- 4 bd
- 2.5 ba
- 1,900 sqft
5052 Burmese Trl, Spartanburg, SC 29306
More floor plans in Everly

Considering this plan?
Our expert will guide your tour, in-person or virtual
Need more information?
Text or call (888) 486-2818
Financials
Estimated monthly payment
Let us help you find your dream home
How many bedrooms are you looking for?
Similar homes nearby
Recently added communities in this area
Nearby communities in Spartanburg
New homes in nearby cities
More New Homes in Spartanburg, SC
- Jome
- New homes search
- South Carolina
- Spartanburg County
- Spartanburg
- Everly
- Everly 2-Story
- 5320 Yellowheart Wy, Spartanburg, SC 29306































