








Book your tour. Save an average of $18,473. We'll handle the rest.
We collect exclusive builder offers, book your tours, and support you from start to housewarming.
- Confirmed tours
- Get matched & compare top deals
- Expert help, no pressure
- No added fees
Estimated value based on Jome data, T&C apply





















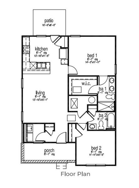
- 2 bd
- 2 ba
- 1,045 sqft
Perry plan in North Shore by D.R. Horton
Visit the community to experience this floor plan
Why tour with Jome?
- No pressure toursTour at your own pace with no sales pressure
- Expert guidanceGet insights from our home buying experts
- Exclusive accessSee homes and deals not available elsewhere
Jome is featured in
Plan description
May also be listed on the D.R. Horton website
Information last verified by Jome: Today at 3:44 AM (March 20, 2026)
Plan highlights
Book your tour. Save an average of $18,473. We'll handle the rest.
We collect exclusive builder offers, book your tours, and support you from start to housewarming.
- Confirmed tours
- Get matched & compare top deals
- Expert help, no pressure
- No added fees
Estimated value based on Jome data, T&C apply
Plan details
- Name:
- Perry
- Property type:
- Floor plan
- Community:
- North Shore
- Builder:
- D.R. Horton
- Size:
- 1,045 sqft
- Stories:
- 1
- Beds:
- 2
- Baths:
- 2
Plan features & finishes
- Interior Features:
- Walk-In ClosetPantry
- Laundry facilities:
- Utility/Laundry Room
- Property amenities:
- Smart Home System
- Rooms:
- Primary Bedroom On MainKitchenLiving RoomOpen Concept FloorplanPrimary Bedroom Downstairs

Get a consultation with our New Homes Expert
- See how your home builds wealth
- Plan your home-buying roadmap
- Discover hidden gems

Community details
North Shore
by D.R. Horton, Summerton, SC
- 4 homes
- 4 plans
- 1,045 - 1,498 sqft
View North Shore details
Want to know more about what's around here?
The Perry floor plan is part of North Shore, a new home community by D.R. Horton, located in Summerton, SC. Visit the North Shore community page for full neighborhood insights, including nearby schools, shopping, walk & bike-scores, commuting, air quality & natural hazards.

Homes built from this plan
Available homes in North Shore
- Home at address 1799 Gordon Rd, Summerton, SC 29148

Cameron
$297,900
- 3 bd
- 2 ba
- 1,498 sqft
1799 Gordon Rd, Summerton, SC 29148
- Home at address 1050 Refuge Wy, Summerton, SC 29148

Curtis
$310,110
- 3 bd
- 2 ba
- 1,182 sqft
1050 Refuge Wy, Summerton, SC 29148
- Home at address 1064 Refuge Wy, Summerton, SC 29148

Home
$318,110
- 3 bd
- 2 ba
- 1,256 sqft
1064 Refuge Wy, Summerton, SC 29148
More floor plans in North Shore

Considering this plan?
Our expert will guide your tour, in-person or virtual
Need more information?
Text or call (888) 545-5198
Financials
Estimated monthly payment
Let us help you find your dream home
How many bedrooms are you looking for?
Similar homes nearby
Recently added communities in this area
Nearby communities in Summerton
New homes in nearby cities
More New Homes in Summerton, SC
- Jome
- New homes search
- South Carolina
- Clarendon County
- Summerton
- North Shore
- 1072 Refuge Wy, Summerton, SC 29148


























