








Book your tour. Save an average of $18,473. We'll handle the rest.
We collect exclusive builder offers, book your tours, and support you from start to housewarming.
- Confirmed tours
- Get matched & compare top deals
- Expert help, no pressure
- No added fees
Estimated value based on Jome data, T&C apply














- 3 bd
- 3 ba
- 2,307 sqft
Fayetteville plan in Stono Village by K. Hovnanian® Homes
Visit the community to experience this floor plan
Why tour with Jome?
- No pressure toursTour at your own pace with no sales pressure
- Expert guidanceGet insights from our home buying experts
- Exclusive accessSee homes and deals not available elsewhere
Jome is featured in
Plan description
May also be listed on the K. Hovnanian® Homes website
Information last verified by Jome: Yesterday at 6:25 PM (March 19, 2026)
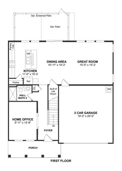
Plan details
- Name:
- Fayetteville
- Property type:
- Floor plan
- Community:
- Stono Village
- Builder:
- K. Hovnanian® Homes
- Size:
- 2,307 sqft
- Stories:
- 2
- Beds:
- 3
- Baths:
- 3
- Garage spaces:
- 2
Plan features & finishes
- Garage/Parking:
- GarageAttached Garage
- Interior Features:
- Walk-In ClosetFoyerPantryLoft
- Kitchen:
- Kitchen Island
- Laundry facilities:
- Utility/Laundry Room
- Property amenities:
- Tech SpacePatioPorch
- Rooms:
- KitchenDining RoomFamily RoomPrimary Bedroom Upstairs

Get a consultation with our New Homes Expert
- See how your home builds wealth
- Plan your home-buying roadmap
- Discover hidden gems
See the full plan layout
Download the floor plan PDF with room dimensions and home design details.

Instant download, no cost

Community details
Stono Village
by K. Hovnanian® Homes, Hollywood, SC
- 8 homes
- 4 plans
- 1,906 - 2,875 sqft
View Stono Village details
Want to know more about what's around here?
The Fayetteville floor plan is part of Stono Village, a new home community by K. Hovnanian® Homes, located in Hollywood, SC. Visit the Stono Village community page for full neighborhood insights, including nearby schools, shopping, walk & bike-scores, commuting, air quality & natural hazards.

Homes built from this plan
Available homes in Stono Village
- Home at address 2078 Mcguire Ln, Unit 020, Hollywood, SC 29449

Home
$499,900
- 4 bd
- 3 ba
- 2,307 sqft
2078 Mcguire Ln, Unit 020, Hollywood, SC 29449
- Home at address 2074 Mcguire Ln, Unit 019, Hollywood, SC 29449

Home
$559,900
- 4 bd
- 3 ba
- 2,875 sqft
2074 Mcguire Ln, Unit 019, Hollywood, SC 29449
- Home at address 2082 Mcquire Ln, Hollywood, SC 29449

Home
$589,900
- 5 bd
- 3 ba
- 2,797 sqft
2082 Mcquire Ln, Hollywood, SC 29449
- Home at address 2074 Mcguire Ln, Hollywood, SC 29449

Macon II
$599,900
- 4 bd
- 3 ba
- 2,875 sqft
2074 Mcguire Ln, Hollywood, SC 29449
- Home at address 1079 Boyington Dr, Hollywood, SC 29449

Knoxville
$649,900
- 5 bd
- 3 ba
- 2,797 sqft
1079 Boyington Dr, Hollywood, SC 29449
- Home at address 1055 Boyington Dr, Hollywood, SC 29449

Macon II
$651,900
- 4 bd
- 3 ba
- 2,875 sqft
1055 Boyington Dr, Hollywood, SC 29449
More floor plans in Stono Village

Considering this plan?
Our expert will guide your tour, in-person or virtual
Need more information?
Text or call (888) 545-5198
Financials
Estimated monthly payment
Let us help you find your dream home
How many bedrooms are you looking for?
Similar homes nearby
Recently added communities in this area
Nearby communities in Hollywood
New homes in nearby cities
More New Homes in Hollywood, SC
- Jome
- New homes search
- South Carolina
- Charleston Metropolitan Area
- Charleston County
- Hollywood
- Stono Village
- 2006 Mcguire Ln, Hollywood, SC 29449






























