



- 4 bd
- 2.5 ba
- 2,254 sqft
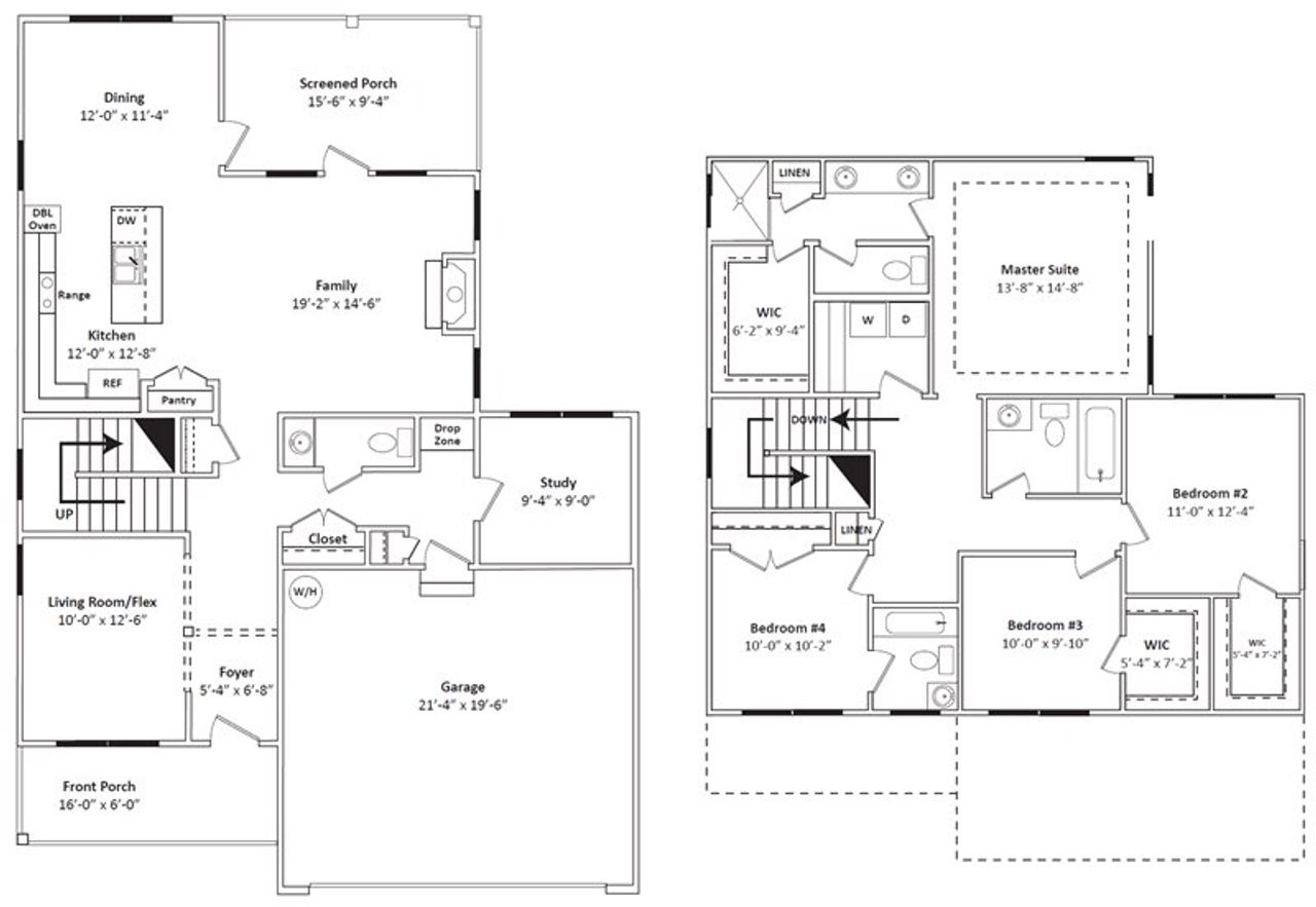
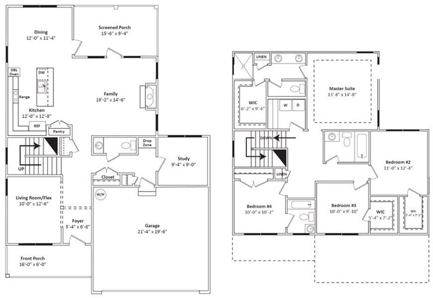
Destiny plan in Lassiter Road by Fleming Homes
New Homes for Sale Near Four Oaks, NC 27524
About this Plan
May also be listed on the Fleming Homes website
Information last verified by Jome: Tuesday at 9:41 PM (November 11, 2025)
Plan details
- Name:
- Destiny
- Property status:
- Sold
- Size:
- 2,254 sqft
- Stories:
- 2
- Beds:
- 4
- Baths:
- 2.5
- Garage spaces:
- 2
Plan features & finishes
- Garage/Parking:
- GarageAttached Garage
- Interior Features:
- Walk-In ClosetFoyerPantry
- Kitchen:
- Kitchen Island
- Laundry facilities:
- Utility/Laundry Room
- Property amenities:
- Porch
- Rooms:
- Flex RoomKitchenOffice/StudyDining RoomFamily RoomLiving RoomPrimary Bedroom Upstairs
See the full plan layout
Download the floor plan PDF with room dimensions and home design details.

Instant download, no cost

Community details
Lassiter Road
by Fleming Homes, Four Oaks, NC
View Lassiter Road details
Want to know more about what's around here?
The Destiny floor plan is part of Lassiter Road, a new home community by Fleming Homes, located in Four Oaks, NC. Visit the Lassiter Road community page for full neighborhood insights, including nearby schools, shopping, walk & bike-scores, commuting, air quality & natural hazards.
















































