


















- 3 bd
- 3 ba
- 2,795 sqft
280 Golfview Ave, Benson, NC 27504
- Single-Family
- $155.08/sqft
- $797/annual HOA
- 2.48-acre lot
New Homes for Sale Near 280 Golfview Ave, Benson, NC 27504
About this Home
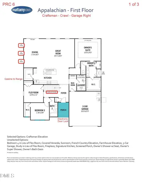
The Appalachian floorplan has a modern style and is thoughtfully designed with lots of open, connected and inviting space. The Great Room, dining room and kitchen with breakfast bar offers a versatile place for entertaining, or simply enjoying daily meals. The owner's suite features a large walk-in closet and private bath. The first floor has a flex room and 2nd bedroom as well. Upstairs, you will find a loft with an additional bedroom and full bath. Relax and enjoy the beautiful view from the rear deck.
Mattamy Homes LLC, MLS 10135252
May also be listed on the Mattamy Homes website
Information last verified by Jome: Today at 4:05 AM (May 4, 2026)
Home details
- Property status:
- Sold
- Lot size (acres):
- 2.48
- Size:
- 2,795 sqft
- Stories:
- 1.5
- Beds:
- 3
- Baths:
- 3
- Garage spaces:
- 2
Construction details
- Builder Name:
- Mattamy Homes
- Completion Date:
- March, 2026
- Year Built:
- 2025
- Roof:
- Shingle Roofing
Home features & finishes
- Construction Materials:
- Vinyl SidingStone
- Flooring:
- Laminate FlooringStone FlooringVinyl FlooringCarpet FlooringTile Flooring
- Garage/Parking:
- GarageAttached Garage
- Interior Features:
- Walk-In ClosetLoft
- Laundry facilities:
- Utility/Laundry Room
- Property amenities:
- BasementPorch
- Rooms:
- Primary Bedroom On MainKitchenDining RoomFamily RoomBreakfast AreaOpen Concept FloorplanPrimary Bedroom Downstairs
Room details
Master Bedroom
Dining Room
Bedroom 2
Utility information
- Heating:
- Electric Heating, Heat Pump
- Water source:
- Public

Community details
The Preserve At Reedy Creek
by Mattamy Homes, Benson, NC
- 3 homes
- 6 plans
- 2,100 - 3,419 sqft
View The Preserve At Reedy Creek details
More homes in The Preserve At Reedy Creek
- Home at address 160 Golfview Ave, Benson, NC 27504
Savings$409,030
Move-in ready- 3 bd
- 2 ba
- 2,339 sqft
160 Golfview Ave, Benson, NC 27504
- Home at address 84 Tee Time Ter, Benson, NC 27504
Savings$415,374
Move-in ready- 3 bd
- 2 ba
- 2,339 sqft
84 Tee Time Ter, Benson, NC 27504
- Home at address 144 Golfview Ave, Benson, NC 27504
Savings$447,246
Move-in ready- 3 bd
- 3 ba
- 2,795 sqft
144 Golfview Ave, Benson, NC 27504
Floor plans in The Preserve At Reedy Creek
About the builder - Mattamy Homes

- 124communities on Jome
- 1,080homes on Jome
Neighborhood
Home address
Schools in Johnston County Schools
GreatSchools’ Summary Rating calculation is based on 4 of the school’s themed ratings, including test scores, student/academic progress, college readiness, and equity. This information should only be used as a reference. Jome is not affiliated with GreatSchools and does not endorse or guarantee this information. Please reach out to schools directly to verify all information and enrollment eligibility. Data provided by GreatSchools.org © 2025
Places of interest
Getting around
Financials
Nearby communities in Benson
Homes in Benson by Mattamy Homes
Recently added communities in this area
Other Builders in Benson, NC
Nearby sold homes
New homes in nearby cities
More New Homes in Benson, NC
Mattamy Homes LLC, MLS 10135252
© 2025 Doorify MLS, Inc. of North Carolina. All rights reserved. Brokers make an effort to deliver accurate information, but buyers should independently verify any information on which they will rely in a transaction. The listing broker shall not be responsible for any typographical errors, misinformation, or misprints, and they shall be held totally harmless from any damages arising from reliance upon this data. This data is provided exclusively for consumers’ personal, non-commercial use. Some IDX listings have been excluded from this IDX display. Closed (sold) listings may have been listed and/or sold by a real estate firm other than the firm(s) featured on this website. Closed data is not available until the sale of the property is recorded in the MLS. Home sale data is not an appraisal, CMA, competitive or comparative market analysis, or home valuation of any property. Listings marked with an icon are provided courtesy of the Doorify MLS, Inc. of North Carolina, Internet Data Exchange Database.
Read moreLast checked May 4, 4:10 pm
- Jome
- New homes search
- North Carolina
- Raleigh-Durham Area
- Johnston County
- Benson
- The Preserve At Reedy Creek
- 280 Golfview Ave, Benson, NC 27504
































































