Logo
Representative exterior photo of a completed home built from the Innovator by Fleming Homes in Lassiter Road, Four Oaks, NC (Image 1).
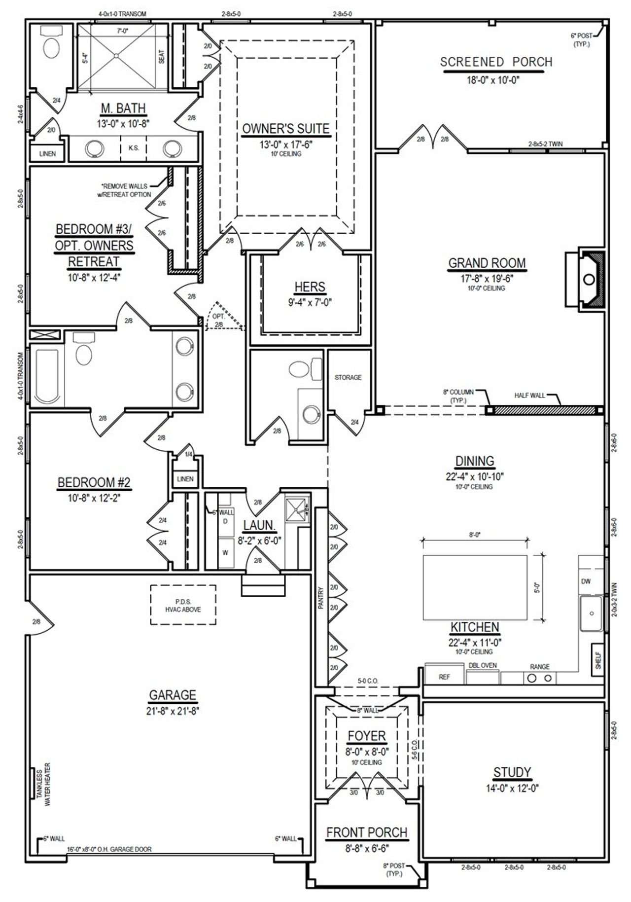
2D floor plan layout for the Innovator by Fleming Homes in Lassiter Road, Four Oaks, NC (Image 2).
Sold
  • 3 bd
  • 2 ba
  • 2,253 sqft

Innovator plan in Lassiter Road by Fleming Homes

Four Oaks, NC

New Homes for Sale Near Four Oaks, NC 27524

About this Plan

This plan is sold. The information provided reflects details of the plan when it was on the market.
Needing a comfortable and functional space to manage work and personal life, the Innovator’s dedicated Office/Study provides a quiet retreat for focused productivity. This single-story layout prioritizes convenience, placing the Primary Bedroom Downstairs for easy accessibility and a sense of privacy. The spacious Family Room, complete with a cozy Fireplace, offers a welcoming area for relaxation and connection. A well-appointed Kitchen Island and Pantry streamline meal preparation, while the Dining Room provides a designated space for family meals or entertaining guests. Storage is abundant with a Garage and Walk-In Closet, and the Utility/Laundry Room keeps household chores organized. The Foyer creates a gracious entry, and a Porch extends the living space outdoors. This 2253-square-foot plan features three bedrooms and two bathrooms, offering a practical and well-organized home base.

May also be listed on the Fleming Homes website

Information last verified by Jome: Tuesday at 9:41 PM (November 11, 2025)

Plan details

*Pricing and availability are subject to change.
Name:
Innovator
Property status:
Sold
Size:
2,253 sqft
Stories:
1
Beds:
3
Baths:
2
Garage spaces:
2

Nearby communities in Four Oaks

Recently added communities in this area

Other Builders in Four Oaks, NC

  • D.R. Horton
  • Lennar
  • DRB Homes
  • Mattamy Homes
  • Mungo Homes
  • Pulte Homes
  • Ryan Homes
  • Dream Finders Homes

Nearby sold homes

More New Homes in Four Oaks, NC

  1. Jome
  2. New homes search
  3. North Carolina
  4. Raleigh-Durham Area
  5. Johnston County
  6. Four Oaks
  7. Lassiter Road
  8. Four Oaks, NC 27524