








Book your tour. Save an average of $18,473. We'll handle the rest.
We collect exclusive builder offers, book your tours, and support you from start to housewarming.
- Confirmed tours
- Get matched & compare top deals
- Expert help, no pressure
- No added fees
Estimated value based on Jome data, T&C apply


























- 3 bd
- 2 ba
- 1,450 sqft
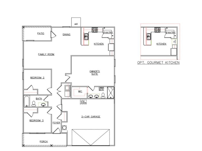
Carter - Single Family Homes plan in Crossvine Village by Dream Finders Homes
Visit the community to experience this floor plan
Why tour with Jome?
- No pressure toursTour at your own pace with no sales pressure
- Expert guidanceGet insights from our home buying experts
- Exclusive accessSee homes and deals not available elsewhere
Jome is featured in
Plan description
May also be listed on the Dream Finders Homes website
Information last verified by Jome: Today at 5:34 AM (March 20, 2026)
Plan details
- Name:
- Carter - Single Family Homes
- Property type:
- Floor plan
- Community:
- Crossvine Village
- Builder:
- Dream Finders Homes
- Size:
- 1,450 sqft
- Stories:
- 1
- Beds:
- 3
- Baths:
- 2
- Garage spaces:
- 2
Plan features & finishes
- Garage/Parking:
- GarageAttached Garage
- Interior Features:
- Walk-In ClosetFoyerPantry
- Laundry facilities:
- Utility/Laundry Room
- Property amenities:
- PatioPorch
- Rooms:
- Primary Bedroom On MainKitchenDining RoomFamily RoomOpen Concept FloorplanPrimary Bedroom Downstairs
- Upgrade Options:
- Gourmet Kitchen

Get a consultation with our New Homes Expert
- See how your home builds wealth
- Plan your home-buying roadmap
- Discover hidden gems
See the full plan layout
Download the floor plan PDF with room dimensions and home design details.

Instant download, no cost

Community details
Crossvine Village
by Dream Finders Homes, LaGrange, GA
- 6 homes
- 10 plans
- 1,450 - 2,860 sqft
View Crossvine Village details
Want to know more about what's around here?
The Carter - Single Family Homes floor plan is part of Crossvine Village, a new home community by Dream Finders Homes, located in LaGrange, GA. Visit the Crossvine Village community page for full neighborhood insights, including nearby schools, shopping, walk & bike-scores, commuting, air quality & natural hazards.

Available homes in Crossvine Village
- Home at address 124 Shenandoah Ln, Lagrange, GA 30241

Home
$338,490
- 4 bd
- 2.5 ba
- 2,300 sqft
124 Shenandoah Ln, Lagrange, GA 30241
- Home at address 106 Shenandoah Ln, LaGrange, GA 30241

Jodeco FP
$342,990
- 4 bd
- 3 ba
- 2,315 sqft
106 Shenandoah Ln, LaGrange, GA 30241
- Home at address 114 Shenandoah Ln, LaGrange, GA 30241

Hemingway
$349,990
- 4 bd
- 3 ba
- 2,500 sqft
114 Shenandoah Ln, LaGrange, GA 30241
- Home at address 202 Freshwater Ct, LaGrange, GA 30241

Jodeco FP
$384,990
- 4 bd
- 3 ba
- 2,315 sqft
202 Freshwater Ct, LaGrange, GA 30241
- Home at address 204 Freshwater Ct, LaGrange, GA 30241

Tucker FP
$388,910
- 4 bd
- 2.5 ba
- 2,300 sqft
204 Freshwater Ct, LaGrange, GA 30241
- Home at address 206 Freshwater Ct, LaGrange, GA 30241

Mira
$424,690
- 4 bd
- 3.5 ba
- 2,860 sqft
206 Freshwater Ct, LaGrange, GA 30241
More floor plans in Crossvine Village
- View details for Cecil - Single Family Homes

Cecil - Single Family Homes
$287,990+- 3 bd
- 2.5 ba
- 1,690 sqft
- View details for Sierra - Single Family Homes

Sierra - Single Family Homes
$298,990+- 4 bd
- 2.5 ba
- 1,900 sqft

Considering this plan?
Our expert will guide your tour, in-person or virtual
Need more information?
Text or call (888) 545-5198
Financials
Estimated monthly payment
Let us help you find your dream home
How many bedrooms are you looking for?
Similar homes nearby
Recently added communities in this area
Nearby communities in LaGrange
New homes in nearby cities
More New Homes in LaGrange, GA
- Jome
- New homes search
- Georgia
- Troup County
- LaGrange
- Crossvine Village
- 200 Freshwater Ct, LaGrange, GA 30241
























