













































- 4 bd
- 3 ba
- 2,029 sqft
The Dogwood plan in Woodland Cove by Smith Family Homes
New Homes for Sale Near 11001 Woodland Trl, Brunswick, GA 31525
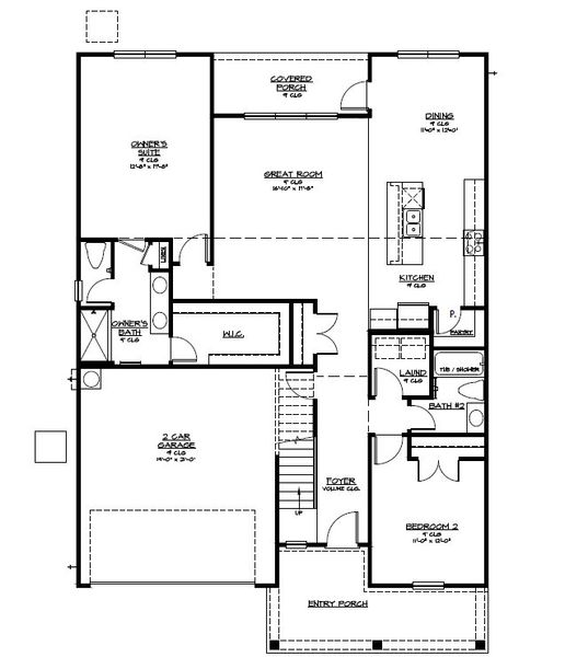
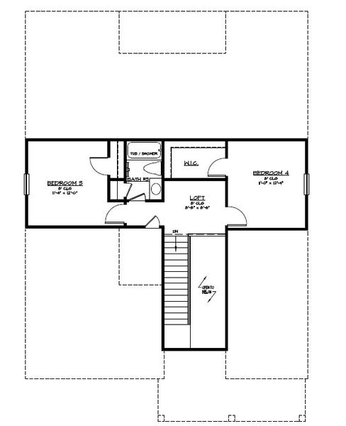
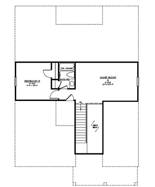
About this Plan
May also be listed on the Smith Family Homes website
Information last verified by Jome: Friday at 9:49 AM (January 9, 2026)
Plan details
- Name:
- The Dogwood
- Property status:
- Sold
- Size:
- 2,029 sqft
- Stories:
- 2
- Beds:
- 4
- Baths:
- 3
- Garage spaces:
- 2
Plan features & finishes
- Garage/Parking:
- GarageAttached Garage
- Interior Features:
- Walk-In ClosetFoyerLoft
- Laundry facilities:
- Utility/Laundry Room
- Property amenities:
- Porch
- Rooms:
- Great RoomKitchenPrimary Bedroom Downstairs

Community details
Woodland Cove
by Smith Family Homes, Brunswick, GA
- 1 home
- 1 plan
- 2,566 - 2,566 sqft
View Woodland Cove details
Want to know more about what's around here?
The The Dogwood floor plan is part of Woodland Cove, a new home community by Smith Family Homes, located in Brunswick, GA. Visit the Woodland Cove community page for full neighborhood insights, including nearby schools, shopping, walk & bike-scores, commuting, air quality & natural hazards.

Homes built from this plan
Available homes in Woodland Cove
- Home at address 11026 Woodland Trl, Brunswick, GA 31525

$380,455
Move-in ready- 5 bd
- 3 ba
- 2,566 sqft
11026 Woodland Trl, Brunswick, GA 31525
More floor plans in Woodland Cove
Financials
Nearby communities in Brunswick
Homes in Brunswick by Smith Family Homes
Recently added communities in this area
Other Builders in Brunswick, GA
Nearby sold homes
New homes in nearby cities
More New Homes in Brunswick, GA
- Jome
- New homes search
- Georgia
- Glynn County
- Brunswick
- Woodland Cove
- 11001 Woodland Trl, Brunswick, GA 31525
















































