































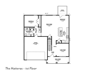
Guided by the principle of building not just houses, but places where memories are made, Smith Family Homes creates thoughtfully designed residences in the Coastal Georgia and South Carolina regions. The company’s approach to construction integrates high-perfo...rmance materials and systems to ensure lasting comfort and value. Roof structures benefit from spray foam insulation for superior thermal performance, while Typar house wrap acts as a crucial air and moisture barrier. Inside, the focus on durability continues with AdvanTech subflooring to prevent squeaks and warping, and stylish finishes like granite or quartz countertops and luxury vinyl plank flooring are included as standard features. This commitment to quality craftsmanship is evident in the builder’s wide array of new construction homes. Homebuyers can explore these offerings within the various welcoming communities Smith Family Homes has developed throughout the Savannah and Bluffton areas.

Need guidance?
Get expert help finding your perfect home
Select a location to see homes & communities by Smith Family Homes
Communities
Homes
Plans
*Pricing and availability are subject to change.






















































































































































































































































































