



- 6 bd
- 3.5 ba
- 3,577 sqft
Lucia plan in Jackson Heights by Designer Homes of Georgia
New Homes for Sale Near 6064 Big Pond Trial, Grovetown, GA 30813
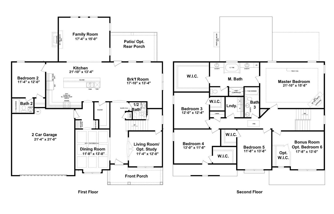
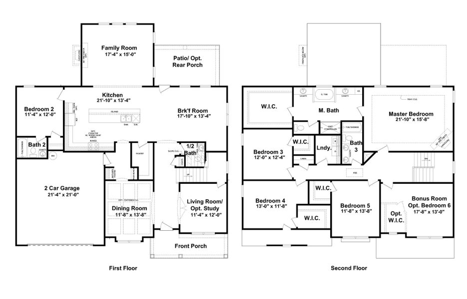
About this Plan
May also be listed on the Designer Homes of Georgia website
Information last verified by Jome: Yesterday at 12:01 PM (March 31, 2026)
Plan details
- Name:
- Lucia
- Property type:
- Sold
- Community:
- Jackson Heights
- Builder:
- Designer Homes of Georgia
- Size:
- 3,577 sqft
- Stories:
- 2
- Beds:
- 6
- Baths:
- 3
- Half baths:
- 1
- Garage spaces:
- 2
Plan features & finishes
- Garage/Parking:
- Garage

Community details
Jackson Heights
by Designer Homes of Georgia, Grovetown, GA
View Jackson Heights details
Want to know more about what's around here?
The Lucia floor plan is part of Jackson Heights, a new home community by Designer Homes of Georgia, located in Grovetown, GA. Visit the Jackson Heights community page for full neighborhood insights, including nearby schools, shopping, walk & bike-scores, commuting, air quality & natural hazards.

Financials
Nearby communities in Grovetown
Recently added communities in this area
Other Builders in Grovetown, GA
Nearby sold homes
New homes in nearby cities
More New Homes in Grovetown, GA
- Jome
- New homes search
- Georgia
- Columbia County
- Grovetown
- Jackson Heights
- 6064 Big Pond Trial, Grovetown, GA 30813



















































