


















With a foundation built on extensive experience, Designer Homes of Georgia has constructed over 400 homes, establishing a significant presence in the CSRA, including Aiken, SC. The company's philosophy centers on providing high-quality homes at an excellent va...lue, ensuring that features often considered upgrades are standard in their builds. This commitment is reflected in their E+ rating, which guarantees that everything a potential homebuyer sees in a model home is included in the final product. The team at Designer Homes of Georgia offers personalized service, guiding clients through every step from floor plan customization to final selections with the help of an experienced interior designer. This dedication to craftsmanship and client satisfaction is evident in the variety of new construction homes they offer across multiple communities, creating lasting value for homeowners.

Need guidance?
Get expert help finding your perfect home
Select a location to see homes & communities by Designer Homes of Georgia
Communities
Homes
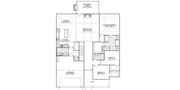
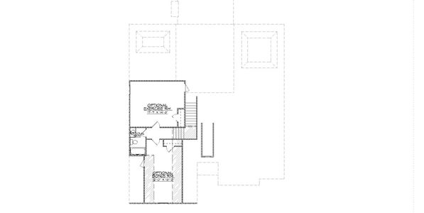
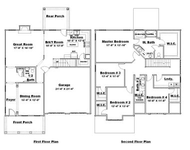
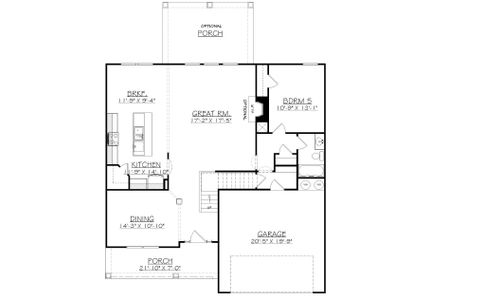
Plans















































































