



Book your tour. Save an average of $18,473. We'll handle the rest.
We collect exclusive builder offers, book your tours, and support you from start to housewarming.
- Confirmed tours
- Get matched & compare top deals
- Expert help, no pressure
- No added fees
Estimated value based on Jome data, T&C apply

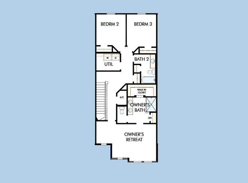
- 3 bd
- 2.5 ba
- 1,764 sqft
The Climson plan in Palmeras at Crossprairie – The Palms Collection by David Weekley Homes
Visit the community to experience this floor plan
Why tour with Jome?
- No pressure toursTour at your own pace with no sales pressure
- Expert guidanceGet insights from our home buying experts
- Exclusive accessSee homes and deals not available elsewhere
Jome is featured in
Plan description
May also be listed on the David Weekley Homes website
Information last verified by Jome: Today at 1:20 AM (April 24, 2026)
Plan details
- Name:
- The Climson
- Property type:
- Floor plan
- Builder:
- David Weekley Homes
- Size from:
- 1,764 sqft
- Size to:
- 1,770 sqft
- Stories:
- 2
- Beds:
- 3
- Baths:
- 2
- Half baths:
- 1
- Garage spaces:
- 2
Plan features & finishes
- Garage/Parking:
- GarageAttached Garage
- Interior Features:
- Walk-In ClosetPantry
- Kitchen:
- Kitchen Island
- Laundry facilities:
- Utility/Laundry Room
- Rooms:
- KitchenPowder RoomDining RoomFamily RoomOpen Concept FloorplanPrimary Bedroom Upstairs

Get a consultation with our New Homes Expert
- See how your home builds wealth
- Plan your home-buying roadmap
- Discover hidden gems
See the full plan layout
Download the floor plan PDF with room dimensions and home design details.

Instant download, no cost

Community details
Palmeras at Crossprairie – The Palms Collection
by David Weekley Homes, St. Cloud, FL
- 4 plans
- 1,632 - 1,772 sqft
View Palmeras at Crossprairie – The Palms Collection details
Want to know more about what's around here?
The The Climson floor plan is part of Palmeras at Crossprairie – The Palms Collection, a new home community by David Weekley Homes, located in St. Cloud, FL. Visit the Palmeras at Crossprairie – The Palms Collection community page for full neighborhood insights, including nearby schools, shopping, walk & bike-scores, commuting, air quality & natural hazards.

More floor plans in Palmeras at Crossprairie – The Palms Collection

Considering this plan?
Our expert will guide your tour, in-person or virtual
Need more information?
Text or call (888) 545-5198
Financials
Estimated monthly payment
Let us help you find your dream home
How many bedrooms are you looking for?























