






Book your tour. Save an average of $18,473. We'll handle the rest.
We collect exclusive builder offers, book your tours, and support you from start to housewarming.
- Confirmed tours
- Get matched & compare top deals
- Expert help, no pressure
- No added fees
Estimated value based on Jome data, T&C apply



- 4 bd
- 3.5 ba
- 3,156 sqft
Pacifica - Elite Series | 60' Wide Lots plan in Wellen Park by ICI Homes
Visit the community to experience this floor plan
Why tour with Jome?
- No pressure toursTour at your own pace with no sales pressure
- Expert guidanceGet insights from our home buying experts
- Exclusive accessSee homes and deals not available elsewhere
Jome is featured in
Plan description
May also be listed on the ICI Homes website
Information last verified by Jome: Today at 5:28 PM (March 20, 2026)
Plan details
- Name:
- Pacifica - Elite Series | 60' Wide Lots
- Property type:
- Floor plan
- Community:
- Wellen Park
- Builder:
- ICI Homes
- Collection:
- Oakbend
- Lot width (feet):
- 60
- Size:
- 3,156 sqft
- Stories:
- 2
- Beds:
- 4
- Baths:
- 3.5
- Garage spaces:
- 3
- HERS index:
- 59
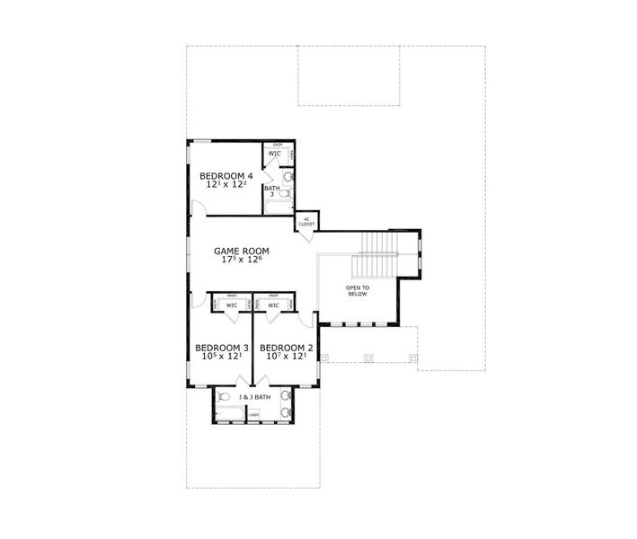
Plan features & finishes
- Garage/Parking:
- GarageAttached Garage
- Interior Features:
- Walk-In ClosetPantry
- Kitchen:
- Kitchen Island
- Laundry facilities:
- Utility/Laundry Room
- Property amenities:
- Two-Story Entry Foyer
- Rooms:
- Primary Bedroom On MainKitchenGame RoomOffice/StudyDining RoomLiving RoomOpen Concept FloorplanPrimary Bedroom Downstairs
- Upgrade Options:
- Tray CeilingLaundry SinkExtended Lanai

Get a consultation with our New Homes Expert
- See how your home builds wealth
- Plan your home-buying roadmap
- Discover hidden gems
See the full plan layout
Download the floor plan PDF with room dimensions and home design details.

Instant download, no cost

Community details
Wellen Park at Wellen Park
by ICI Homes, Venice, FL
- 2 homes
- 13 plans
- 2,537 - 3,999 sqft
View Wellen Park details
Want to know more about what's around here?
The Pacifica - Elite Series | 60' Wide Lots floor plan is part of Wellen Park, a new home community by ICI Homes, located in Venice, FL. Visit the Wellen Park community page for full neighborhood insights, including nearby schools, shopping, walk & bike-scores, commuting, air quality & natural hazards.

Available homes in Wellen Park
- Home at address 12263 Falling Leaf Pl, Venice, FL 34293

Costa Mesa - Elite Series | 60' Wide Lots
Oakbend
$925,350
- 4 bd
- 3 ba
- 2,684 sqft
12263 Falling Leaf Pl, Venice, FL 34293
- Home at address 13330 Amargo Ct, Venice, FL 34293

Egret V - Regency Series | 75' Wide Lots
Palmera
$1,254,800
- 4 bd
- 3 ba
- 3,219 sqft
13330 Amargo Ct, Venice, FL 34293
More floor plans in Wellen Park
- View details for Davenport - Elite Series | 60' Wide Lots

Davenport - Elite Series | 60' Wide Lots
Oakbend
$743,900+- 4 bd
- 3 ba
- 2,537 sqft
- View details for Costa Mesa - Elite Series | 60' Wide Lots

Costa Mesa - Elite Series | 60' Wide Lots
Oakbend
$754,900+- 4 bd
- 3 ba
- 2,565 sqft

Considering this plan?
Our expert will guide your tour, in-person or virtual
Need more information?
Text or call (888) 545-5198
Financials
Estimated monthly payment
Let us help you find your dream home
How many bedrooms are you looking for?
Similar homes nearby
Recently added communities in this area
Nearby communities in Venice
New homes in nearby cities
More New Homes in Venice, FL
- Jome
- New homes search
- Florida
- Sarasota County
- Venice
- Wellen Park
- Oakbend
- 18477 Foxtail Lp, Venice, FL 34293





























