








Book your tour. Save an average of $18,473. We'll handle the rest.
We collect exclusive builder offers, book your tours, and support you from start to housewarming.
- Confirmed tours
- Get matched & compare top deals
- Expert help, no pressure
- No added fees
Estimated value based on Jome data, T&C apply


























- 3 bd
- 2.5 ba
- 1,394 sqft
Wingate - Townhomes plan in Brook Forest by Dream Finders Homes
Visit the community to experience this floor plan
Why tour with Jome?
- No pressure toursTour at your own pace with no sales pressure
- Expert guidanceGet insights from our home buying experts
- Exclusive accessSee homes and deals not available elsewhere
Jome is featured in
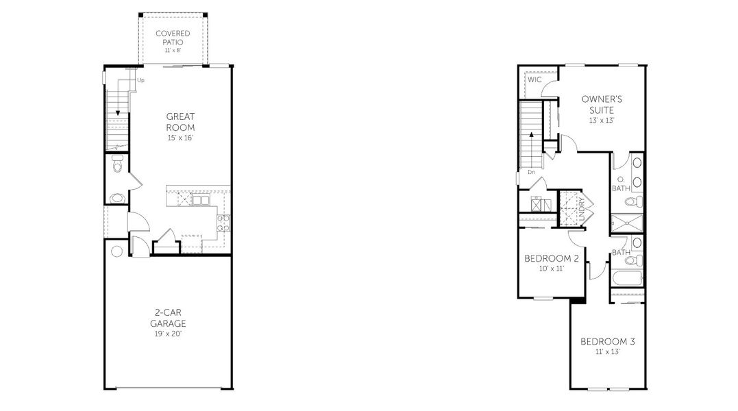
Plan description
May also be listed on the Dream Finders Homes website
Information last verified by Jome: Today at 5:23 AM (April 6, 2026)
Plan details
- Name:
- Wingate - Townhomes
- Property type:
- Floor plan
- Community:
- Brook Forest
- Builder:
- Dream Finders Homes
- Collection:
- Brook Forest - Townhomes
- Size:
- 1,394 sqft
- Stories:
- 2
- Beds:
- 3
- Baths:
- 2
- Half baths:
- 1
- Garage spaces:
- 2
Plan features & finishes
- Garage/Parking:
- GarageAttached Garage
- Interior Features:
- Walk-In ClosetPantry
- Kitchen:
- Kitchen Range
- Laundry facilities:
- Utility/Laundry Room
- Property amenities:
- Covered PatioPatio
- Rooms:
- Great RoomKitchenOpen Concept FloorplanPrimary Bedroom Upstairs

Get a consultation with our New Homes Expert
- See how your home builds wealth
- Plan your home-buying roadmap
- Discover hidden gems
See the full plan layout
Download the floor plan PDF with room dimensions and home design details.

Instant download, no cost

Community details
Brook Forest
by Dream Finders Homes, St. Augustine, FL
- 19 homes
- 22 plans
- 1,386 - 3,518 sqft
View Brook Forest details
Want to know more about what's around here?
The Wingate - Townhomes floor plan is part of Brook Forest, a new home community by Dream Finders Homes, located in St. Augustine, FL. Visit the Brook Forest community page for full neighborhood insights, including nearby schools, shopping, walk & bike-scores, commuting, air quality & natural hazards.

Homes built from this plan
Available homes in Brook Forest
- Home at address 185 Wood Breeze Wy, St. Augustine, FL 32092

Wingate
SavingsBrook Forest - Townhomes
$329,990
- 3 bd
- 2.5 ba
- 1,394 sqft
185 Wood Breeze Wy, St. Augustine, FL 32092
- Home at address 185 Wood Breeze Wy, St. Augustine, FL 32092

Home
Savings$330,500
- 3 bd
- 3 ba
- 1,389 sqft
185 Wood Breeze Wy, St. Augustine, FL 32092
- Home at address 37 Woods Ln, St. Augustine, FL 32092

Warbler
SavingsBrook Forest - Townhomes
$355,579
- 3 bd
- 2.5 ba
- 1,453 sqft
37 Woods Ln, St. Augustine, FL 32092
- Home at address 45 Woods Ln, St. Augustine, FL 32092

Warbler
SavingsBrook Forest - Townhomes
$361,053
- 3 bd
- 2.5 ba
- 1,453 sqft
45 Woods Ln, St. Augustine, FL 32092
- Home at address 389 Woods Ln, St. Augustine, FL 32092

Osprey - Townhomes
SavingsBrook Forest - Townhomes
$370,490
- 4 bd
- 3 ba
- 1,760 sqft
389 Woods Ln, St. Augustine, FL 32092
- Home at address 394 Woods Ln, St. Augustine, FL 32092

Coral - Townhomes
SavingsBrook Forest - Townhomes
$380,500
- 3 bd
- 3 ba
- 1,944 sqft
394 Woods Ln, St. Augustine, FL 32092
More floor plans in Brook Forest
- View details for Eagle - Townhomes

Eagle - Townhomes
SavingsBrook Forest - Townhomes
$312,490+- 3 bd
- 2.5 ba
- 1,592 sqft
- View details for Warbler - Townhomes

Warbler - Townhomes
SavingsBrook Forest - Townhomes
$322,490+- 3 bd
- 2.5 ba
- 1,438 sqft

Considering this plan?
Our expert will guide your tour, in-person or virtual
Need more information?
Text or call (888) 545-5198
Financials
Estimated monthly payment
Let us help you find your dream home
How many bedrooms are you looking for?
Similar homes nearby
Recently added communities in this area
Nearby communities in St. Augustine
New homes in nearby cities
More New Homes in St. Augustine, FL
- Jome
- New homes search
- Florida
- Jacksonville Metropolitan Area
- St. Johns County
- St. Augustine
- Brook Forest
- Brook Forest - Townhomes
- 51 Woods Ln, St. Augustine, FL 32092






























